home_plan_banner

เวนิตา I Venita

คอนเทมโพรารี่

บ้านสองชั้น

บ้านสองชั้น สไตล์คอนเทมโพรารี่ ผสมผสานกลิ่นอายความโมเดิร์น โดดเด่นด้วยเส้นสายสถาปัตยกรรมที่เรียบง่ายแต่ทรงพลัง ให้ความรู้สึกสงบ อบอุ่น จากโทนสีขาว เทา และน้ำตาล เข้ากับดีไซน์เรียบหรูเหนือกาลเวลา โทนสีขาวสะอาดตา ตัดกับเฉดสีเทา และกลิ่นอายของไม้สีน้ำตาลธรรมชาติจากระแนงตกแต่ง ทุกตารางนิ้วถูกจัดวางอย่างลงตัวเพื่อการพักผ่อนอย่างแท้จริง

รายละเอียดบ้าน

5.40

ล้านบาท

ห้องนอน

3

ห้อง

จำนวนห้องรับแขก

2

ห้อง

จำนวนที่จอดรถ

2

คัน

ขนาดที่ดิน

86.19

ตร.ว.

จำนวนห้องน้ำ

4

ห้อง

จำนวนชั้น

2

ชั้น

พื้นที่ใช้สอยตัวบ้าน

308.50

ตร.ม.

กว้าง x ลึก

15.07 x 12.05

เมตร

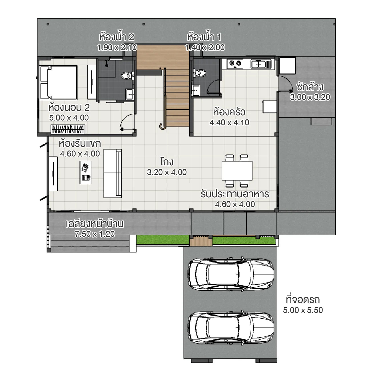
plan-floor-1

แปลนบ้าน ชั้น 1

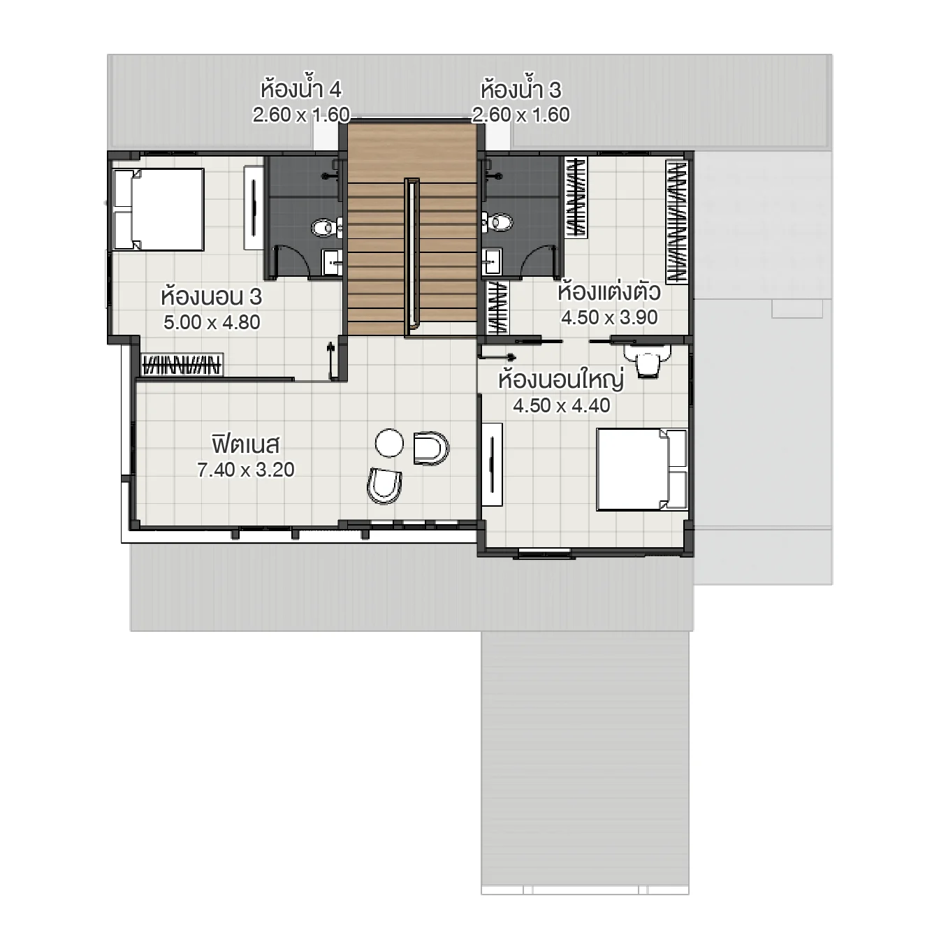
plan-floor-2

แปลนบ้าน ชั้น 2

รวมภาพออกแบบ

วีดีโอออกแบบบ้าน

ติดต่อแอ็ดไมร

ประเมิณราคาฟรีภายใน 4 ชั่วโมง

แบบบ้านที่คล้ายกัน

ไทยประยุกต์

ขุนพันธ์ | Khun-Pun

บ้านไทยประยุกต์สไตล์ร่วมสมัย ถูกออกแบบให้สวยงามและเหมาะกับสภาพอากาศเมืองไทย โดดเด่นด้วยการยกใต้ถุนสูง ดีไซน์หลังคาทรงมะนิลาสีน้ำตาล ตัดกับผนังภายนอกผสมผสานสีขาว ทำให้บ้านดูอบอุ่นและกลมกลืนกับธรรมชาติ หน้าต่างกระจกบานใหญ่ช่วยดึงแสงธรรมชาติเข้าภายใน ทำให้บรรยากาศโปร่งสบาย เหมาะกับครอบครัวที่ต้องการบ้านที่ผสมผสานระหว่างความงดงามแบบไทยดั้งเดิมที่มาพร้อมกับฟังก์ชันทันสมัย

ขนาดที่ดิน

50 ตร.ว.

ที่ดินกว้าง

11 ม.

3

3

1

183

3.70

ล้านบาท

คลาสสิค

มินตรา | Mintra

"มินตรา" บ้านสองชั้นสไตล์คลาสสิก ผสมผสานโทนสีขาวและสีเทาอย่างลงตัว การออกแบบเน้นโทนสีขาว หน้าต่างและประตูบานใหญ่เลือกใช้อะลูมิเนียมสีดำ ตัดกับผนังสีอ่อนสะท้อนรสนิยมให้ความรู้สึกเรียบหรูและมีเอกลักษณ์ ภายในบ้านออกแบบเพื่อการใช้งานเฉพาะคุณ ในพื้นที่ใช้สอย 211 ตร.ม. ทุกองค์ประกอบถูกเลือกสรรด้วยวัสดุคุณภาพเพื่อบ้านที่ได้มาตรฐานอย่างแท้จริง"

ขนาดที่ดิน

58 ตร.ว.

ที่ดินกว้าง

12 ม.

4

3

2

211

3.59

ล้านบาท

คอนเทมโพรารี่

ฉัตรเงิน M | Chat Ngoen M

บ้าน 2 ชั้น สไตล์คอนเทมโพรารี่โมเดิร์น โดดเด่นผ่านการออกแบบด้วยโทนสีขาว เทา น้ำตาล เพิ่มมิติด้วยหลังคาทรงปั้นหยาสีเข้มซ้อนระดับให้บ้านมีเอกลักษณ์ ผนังตกแต่งด้วยหินธรรมชาติที่ให้ความรู้สึกอบอุ่นและสง่างาม จัดเต็มด้วยฟังก์ชันครบครัน ไม่ว่าจะเป็นห้องนั่งเล่น ห้องครัว หรือพื้นที่รับประทานอาหาร ด้านหน้าบ้านมีสระว่ายน้ำสไตล์รีสอร์ท ช่วยเติมเต็มความรู้สึกผ่อนคลาย และสะดวกสบายในทุกมิติ

ขนาดที่ดิน

67 ตร.ว.

ที่ดินกว้าง

13 ม.

4

5

1

207

4.40

ล้านบาท

คอนเทมโพรารี่

คาซึโอะ S | Katsuo S

คาซึโอะ บ้านสองชั้นสไตล์คอนเทมโพรารี่ โทนสีหลักของบ้านเลือกใช้สีขาว สีเทา และสีน้ำตาลหลังคาทรงปั้นหยาสีเทาเข้มให้ความรู้สึกแข็งแรง เรียบหรู และทันสมัย ช่องกระจกบานใหญ่ช่วยดึงแสงธรรมชาติเข้าสู่ภายใน ทำให้บรรยากาศโปร่งโล่ง สบาย เหมาะสำหรับครอบครัวที่ต้องการความลงตัวทั้งในด้านฟังก์ชันการใช้งานและดีไซน์ที่ทันสมัย

ขนาดที่ดิน

50 ตร.ว.

ที่ดินกว้าง

9 ม.

4

3

2

185

3.30

ล้านบาท

ไทยประยุกต์

ตามฝัน S | TAMFAN S

ตามฝัน บ้านสองชั้นสไตล์ไทยประยุกต์ ผสมผสานความงามแบบดั้งเดิมเข้ากับดีไซน์ร่วมสมัยได้อย่างลง ตัวบ้านเลือกใช้โทนสีขาวตัดกับหลังคาทรงจั่วสีเทา ชั้นบนออกแบบด้วยงานไม้ระแนงตกแต่งช่วยสร้างเอกลักษณ์ในสไตล์ไทยประยุกต์ พร้อมเพิ่มความโปร่งและช่วยระบายอากาศได้ดี ชั้นล่างเป็นพื้นที่ใช้สำหรับรับแขก พักผ่อน หรือทำกิจกรรมครอบครัว ตอบโจทย์การใช้งานเฉพาะคุณ

ขนาดที่ดิน

44 ตร.ว.

ที่ดินกว้าง

14 ม.

3

3

2

135

2.60

ล้านบาท

Untitled

ติดตาม

facebook
youtube
Line2
tiktok

แบบสำรวจ

  • แบบสำรวจความต้องการ

  • ร้องเรียนบริการ

  • ประเมินความพึงพอใจ

หจก.แอ็ดไมร คอนสตรัคชั่น

306/24-25 มิตรภาพซอย 4 ต.ในเมือง
อ.เมืองนครราชสีมา จ.นครราชสีมา
30000

เวลาทำการ : จันทร์ - เสาร์
เวลา 08.00 - 17.00 น.

© สงวนลิขสิทธิ์ หจก. แอ็ดไมร คอนสตรัคชั่น พ.ศ. 2567

Line