home_plan_banner

เกลเชียร์ I GLACIER

คลาสสิค

บ้านสองชั้น

บ้านเกลเชียร์ออกแบบในสไตล์ คลาสสิกสองชั้น (Classic 2-storey) เน้นความภูมิฐาน หรูหรา และลงตัว เหมาะกับครอบครัวที่ต้องการภาพลักษณ์มั่นคงและพื้นที่ใช้สอยครบทุกฟังก์ชัน

รายละเอียดบ้าน

3.20

ล้านบาท

ห้องนอน

3

ห้อง

จำนวนห้องรับแขก

1

ห้อง

จำนวนที่จอดรถ

2

คัน

ขนาดที่ดิน

57.38

ตร.ว.

จำนวนห้องน้ำ

3

ห้อง

จำนวนชั้น

2

ชั้น

พื้นที่ใช้สอยตัวบ้าน

174.10

ตร.ม.

กว้าง x ลึก

11.20 x 10.10

เมตร

plan-floor-1

แปลนบ้าน ชั้น 1

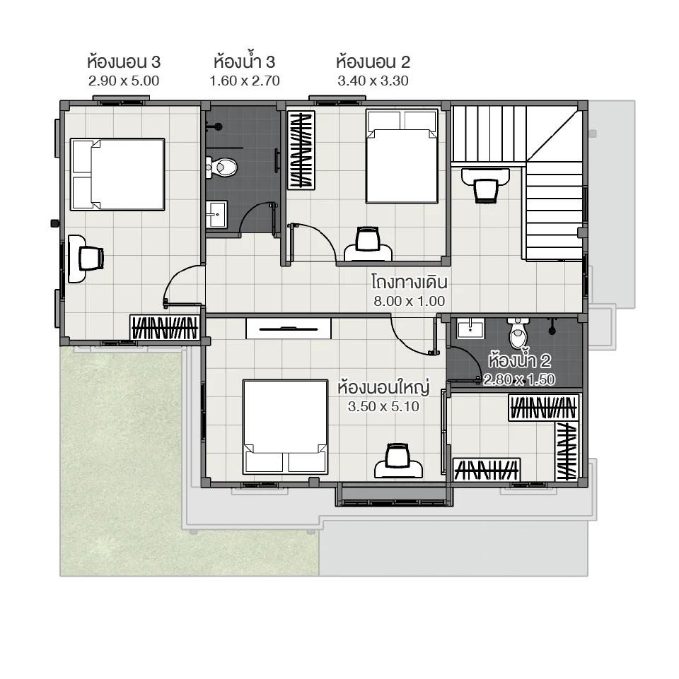
plan-floor-2

แปลนบ้าน ชั้น 2

รวมภาพออกแบบ

วีดีโอออกแบบบ้าน

ติดต่อแอ็ดไมร

ประเมิณราคาฟรีภายใน 4 ชั่วโมง

แบบบ้านที่คล้ายกัน

คอนเทมโพรารี่

ฉัตรเงิน M | Chat Ngoen M

บ้าน 2 ชั้น สไตล์คอนเทมโพรารี่โมเดิร์น โดดเด่นผ่านการออกแบบด้วยโทนสีขาว เทา น้ำตาล เพิ่มมิติด้วยหลังคาทรงปั้นหยาสีเข้มซ้อนระดับให้บ้านมีเอกลักษณ์ ผนังตกแต่งด้วยหินธรรมชาติที่ให้ความรู้สึกอบอุ่นและสง่างาม จัดเต็มด้วยฟังก์ชันครบครัน ไม่ว่าจะเป็นห้องนั่งเล่น ห้องครัว หรือพื้นที่รับประทานอาหาร ด้านหน้าบ้านมีสระว่ายน้ำสไตล์รีสอร์ท ช่วยเติมเต็มความรู้สึกผ่อนคลาย และสะดวกสบายในทุกมิติ

ขนาดที่ดิน

67 ตร.ว.

ที่ดินกว้าง

13 ม.

4

5

1

207

4.40

ล้านบาท

คลาสสิค

เอลีส | Elise

ชื่อ “Elise” มาจากภาษาฝรั่งเศส หมายถึง ความสง่างามและความอ่อนโยน บ้านเอลีสจึงถูกออกแบบในสไตล์ Classic Elegance ที่สะท้อนความหรูหราเหนือกาลเวลา ผสมผสานความคลาสสิกเข้ากับการอยู่อาศัยที่สะดวกสบายในยุคปัจจุบัน เหมาะกับครอบครัวที่ต้องการบ้านที่ทั้งโดดเด่นและอบอุ่น

ขนาดที่ดิน

62 ตร.ว.

ที่ดินกว้าง

12 ม.

4

3

2

262

4.65

ล้านบาท

คอนเทมโพรารี่

คาซึโอะ L | Katsuo L

คาซึโอะ บ้านสองชั้นสไตล์คอนเทมโพรารี่ โทนสีหลักของบ้านเลือกใช้สีขาว สีเทา และสีน้ำตาลหลังคาทรงปั้นหยาสีเทาเข้มให้ความรู้สึกแข็งแรง เรียบหรู และทันสมัย ช่องกระจกบานใหญ่ช่วยดึงแสงธรรมชาติเข้าสู่ภายใน ทำให้บรรยากาศโปร่งโล่ง สบาย เหมาะสำหรับครอบครัวที่ต้องการความลงตัวทั้งในด้านฟังก์ชันการใช้งานและดีไซน์ที่ทันสมัย

ขนาดที่ดิน

55 ตร.ว.

ที่ดินกว้าง

12 ม.

4

3

2

252

4.10

ล้านบาท

ไทยประยุกต์

ตามฝัน S | TAMFAN S

ตามฝัน บ้านสองชั้นสไตล์ไทยประยุกต์ ผสมผสานความงามแบบดั้งเดิมเข้ากับดีไซน์ร่วมสมัยได้อย่างลง ตัวบ้านเลือกใช้โทนสีขาวตัดกับหลังคาทรงจั่วสีเทา ชั้นบนออกแบบด้วยงานไม้ระแนงตกแต่งช่วยสร้างเอกลักษณ์ในสไตล์ไทยประยุกต์ พร้อมเพิ่มความโปร่งและช่วยระบายอากาศได้ดี ชั้นล่างเป็นพื้นที่ใช้สำหรับรับแขก พักผ่อน หรือทำกิจกรรมครอบครัว ตอบโจทย์การใช้งานเฉพาะคุณ

ขนาดที่ดิน

44 ตร.ว.

ที่ดินกว้าง

14 ม.

3

3

2

135

2.60

ล้านบาท

โมเดิร์น

เดอะ คราวน์ L EVA | The Clound L EVA

“The Cloud EVA” ออกแบบในสไตล์ Luxury Modern Minimal เน้นความโปร่งโล่ง เส้นสายเรียบคม และการใช้พื้นที่เปิดกว้าง ให้บรรยากาศสงบหรูเหมือนลอยอยู่เหนือความวุ่นวาย ราวกับ “บ้านที่ลอยอยู่บนก้อนเมฆ” บ้านหลังนี้เหมาะกับครอบครัวใหญ่ที่ต้องการพื้นที่หรูหรา ฟังก์ชันครบ และภาพลักษณ์ระดับพรีเมียม

ขนาดที่ดิน

104 ตร.ว.

ที่ดินกว้าง

16 ม.

4

3

2

327

6.55

ล้านบาท

Untitled

ติดตาม

facebook
youtube
Line2
tiktok

แบบสำรวจ

  • แบบสำรวจความต้องการ

  • ร้องเรียนบริการ

  • ประเมินความพึงพอใจ

หจก.แอ็ดไมร คอนสตรัคชั่น

306/24-25 มิตรภาพซอย 4 ต.ในเมือง
อ.เมืองนครราชสีมา จ.นครราชสีมา
30000

เวลาทำการ : จันทร์ - เสาร์
เวลา 08.00 - 17.00 น.

© สงวนลิขสิทธิ์ หจก. แอ็ดไมร คอนสตรัคชั่น พ.ศ. 2567

Line