home_plan_banner

เดซี่ I Daisy

โมเดิร์น

บ้านสองชั้น

สะท้อนความทันสมัยไปกับบ้านสองชั้นสไตล์คอนเทมโพรารี่โมเดิร์น ตัวบ้านใช้โทนสีขาวและสีเทาเข้ม สลับกับโทนสีน้ำตาลอ่อนจากไม้ระแนงตกแต่ง ให้ความรู้สึกอบอุ่น สบายตา และมีมิติที่โดดเด่น พื้นที่ภายในโปร่งโล่งด้วยกระจกและประตูบานใหญ่ ช่วยให้บ้านรับแสงธรรมชาติได้ดี พร้อมออกแบบพื้นที่ใช้สอยที่ถูกจัดสรรมาให้อย่างลงตัว ตอบโจทย์บ้านสวย ทันสมัย ได้มาตรฐานในทุกมิติ

รายละเอียดบ้าน

2.80

ล้านบาท

ห้องนอน

4

ห้อง

จำนวนห้องรับแขก

1

ห้อง

จำนวนที่จอดรถ

1

คัน

ขนาดที่ดิน

52.96

ตร.ว.

จำนวนห้องน้ำ

3

ห้อง

จำนวนชั้น

2

ชั้น

พื้นที่ใช้สอยตัวบ้าน

162.00

ตร.ม.

กว้าง x ลึก

7.90 x 12.80

เมตร

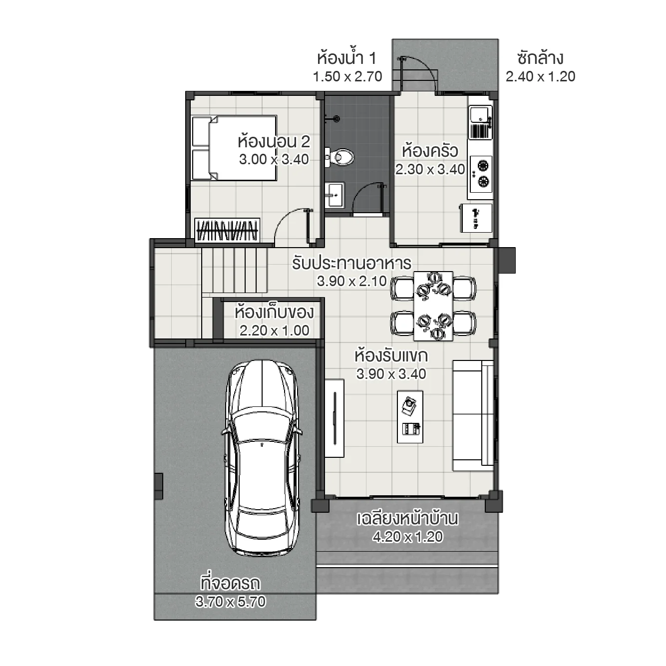
plan-floor-1

แปลนบ้าน ชั้น 1

plan-floor-2

แปลนบ้าน ชั้น 2

รวมภาพออกแบบ

วีดีโอออกแบบบ้าน

ติดต่อแอ็ดไมร

ประเมิณราคาฟรีภายใน 4 ชั่วโมง

แบบบ้านที่คล้ายกัน

คลาสสิค

เกลเชียร์ | GLACIER

บ้านเกลเชียร์ออกแบบในสไตล์ คลาสสิกสองชั้น (Classic 2-storey) เน้นความภูมิฐาน หรูหรา และลงตัว เหมาะกับครอบครัวที่ต้องการภาพลักษณ์มั่นคงและพื้นที่ใช้สอยครบทุกฟังก์ชัน

ขนาดที่ดิน

57 ตร.ว.

ที่ดินกว้าง

11 ม.

3

3

1

174

3.20

ล้านบาท

โมเดิร์น

ทิมเบอร์ | Timber

บ้านสไตล์คอนเทมโพรารี่ โมเดิร์นหลังนี้ถูกออกแบบภายใต้แนวคิด “เรียบง่าย ทันสมัย อยู่สบายในทุกวัน” ตัวบ้านสองชั้นเน้นความเรียบง่ายแต่ยังคงความทันสมัย พื้นที่ใช้สอยจัดวางอย่างลงตัว ผสานวัสดุคุณภาพและโทนสีขาว เทา น้ำ พร้อมไม้ระแนงตกแต่งช่วยเพิ่มมิติ และให้ความรู้สึกอบอุ่นยิ่งขึ้น และตอบโจทย์การพักผ่อนที่แท้จริง

ขนาดที่ดิน

46 ตร.ว.

ที่ดินกว้าง

7 ม.

4

2

2

172

2.85

ล้านบาท

ไทยประยุกต์

ตามฝัน M | TAMFAN M

ตามฝัน บ้านสองชั้นสไตล์ไทยประยุกต์ ผสมผสานความงามแบบดั้งเดิมเข้ากับดีไซน์ร่วมสมัยได้อย่างลง ตัวบ้านเลือกใช้โทนสีขาวตัดกับหลังคาทรงจั่วสีเทา ชั้นบนออกแบบด้วยงานไม้ระแนงตกแต่งช่วยสร้างเอกลักษณ์ในสไตล์ไทยประยุกต์ พร้อมเพิ่มความโปร่งและช่วยระบายอากาศได้ดี ชั้นล่างเป็นพื้นที่ใช้สำหรับรับแขก พักผ่อน หรือทำกิจกรรมครอบครัว ตอบโจทย์การใช้งานเฉพาะคุณ

ขนาดที่ดิน

96 ตร.ว.

ที่ดินกว้าง

24 ม.

3

2

2

196

3.60

ล้านบาท

เจแปน

อาเกมิ | Akemi

“อาเกมิ” คือบ้านสไตล์ Minimal Japanese Modern ที่นำแรงบันดาลใจจากความเรียบง่ายของญี่ปุ่นมาปรับให้เข้ากับการอยู่อาศัยในปัจจุบัน ดีไซน์สะอาดตา โปร่งโล่ง และเชื่อมต่อกับสวนธรรมชาติรอบด้าน ให้ความรู้สึกสงบ อบอุ่น และผ่อนคลาย เหมาะกับครอบครัวที่ต้องการบ้านเรียบง่ายแต่ใช้งานได้จริง

ขนาดที่ดิน

60 ตร.ว.

ที่ดินกว้าง

14 ม.

3

2

1

120

2.10

ล้านบาท

โมเดิร์น

เดอะ คราวน์ S UNA | The Clound S UNA

บ้านเดอะคลาวด์ ยูนา ออกแบบในสไตล์โมเดิร์น เน้นความโปร่ง โล่ง และดีไซน์เรียบหรู เหมาะสำหรับครอบครัวใหญ่ที่ต้องการทั้งความสะดวกสบายและภาพลักษณ์ที่ดูภูมิฐาน

ขนาดที่ดิน

82 ตร.ว.

ที่ดินกว้าง

13 ม.

4

3

2

287

4.60

ล้านบาท

Untitled

ติดตาม

facebook
youtube
Line2
tiktok

แบบสำรวจ

  • แบบสำรวจความต้องการ

  • ร้องเรียนบริการ

  • ประเมินความพึงพอใจ

หจก.แอ็ดไมร คอนสตรัคชั่น

306/24-25 มิตรภาพซอย 4 ต.ในเมือง
อ.เมืองนครราชสีมา จ.นครราชสีมา
30000

เวลาทำการ : จันทร์ - เสาร์
เวลา 08.00 - 17.00 น.

© สงวนลิขสิทธิ์ หจก. แอ็ดไมร คอนสตรัคชั่น พ.ศ. 2567

Line