home_plan_banner

เอลีส I Elise

คลาสสิค

บ้านสองชั้น

ชื่อ “Elise” มาจากภาษาฝรั่งเศส หมายถึง ความสง่างามและความอ่อนโยน บ้านเอลีสจึงถูกออกแบบในสไตล์ Classic Elegance ที่สะท้อนความหรูหราเหนือกาลเวลา ผสมผสานความคลาสสิกเข้ากับการอยู่อาศัยที่สะดวกสบายในยุคปัจจุบัน เหมาะกับครอบครัวที่ต้องการบ้านที่ทั้งโดดเด่นและอบอุ่น

รายละเอียดบ้าน

4.65

ล้านบาท

ห้องนอน

4

ห้อง

จำนวนห้องรับแขก

2

ห้อง

จำนวนที่จอดรถ

2

คัน

ขนาดที่ดิน

62.44

ตร.ว.

จำนวนห้องน้ำ

3

ห้อง

จำนวนชั้น

2

ชั้น

พื้นที่ใช้สอยตัวบ้าน

262.30

ตร.ม.

กว้าง x ลึก

12.65 x 10.00

เมตร

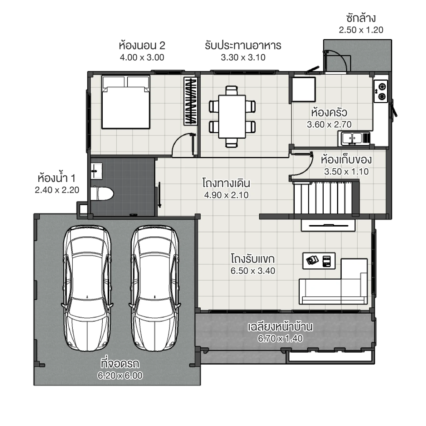
plan-floor-1

แปลนบ้าน ชั้น 1

plan-floor-2

แปลนบ้าน ชั้น 2

รวมภาพออกแบบ

วีดีโอออกแบบบ้าน

ติดต่อแอ็ดไมร

ประเมิณราคาฟรีภายใน 4 ชั่วโมง

แบบบ้านที่คล้ายกัน

โมเดิร์น

เดซี่ | Daisy

สะท้อนความทันสมัยไปกับบ้านสองชั้นสไตล์คอนเทมโพรารี่โมเดิร์น ตัวบ้านใช้โทนสีขาวและสีเทาเข้ม สลับกับโทนสีน้ำตาลอ่อนจากไม้ระแนงตกแต่ง ให้ความรู้สึกอบอุ่น สบายตา และมีมิติที่โดดเด่น พื้นที่ภายในโปร่งโล่งด้วยกระจกและประตูบานใหญ่ ช่วยให้บ้านรับแสงธรรมชาติได้ดี พร้อมออกแบบพื้นที่ใช้สอยที่ถูกจัดสรรมาให้อย่างลงตัว ตอบโจทย์บ้านสวย ทันสมัย ได้มาตรฐานในทุกมิติ

ขนาดที่ดิน

52 ตร.ว.

ที่ดินกว้าง

7 ม.

4

3

1

162

2.80

ล้านบาท

คอนเทมโพรารี่

นิรันดร์ | Niran

โดดเด่นด้วยเส้นสายที่เรียบง่ายแต่เฉียบคม ผสมผสานสมดุลระหว่างความทันสมัยและความอบอุ่น ออกแบบโดยใช้โทนสีน้ำตาลอ่อน สีเทาเข้ม และสีขาว โครงสร้างถูกวางแผนอย่างพิถีพิถัน รองรับการใช้งานจริงในระยะยาว พร้อมฟังก์ชันครบครัน แบบบ้าน “นิรันดร์” ถูกออกแบบโดยคำนึงถึงมาตรฐานการก่อสร้างที่ทันสมัย แข็งแรง และปลอดภัย ให้เจ้าของบ้านมั่นใจในคุณภาพ พร้อมความรู้สึกสุขใจทุกครั้งที่ได้กลับบ้าน

ขนาดที่ดิน

52 ตร.ว.

ที่ดินกว้าง

7 ม.

4

3

1

162

2.75

ล้านบาท

คอนเทมโพรารี่

ฉัตรเงิน L | Chat Ngoen L

บ้าน 2 ชั้น สไตล์คอนเทมโพรารี่โมเดิร์น โดดเด่นผ่านการออกแบบด้วยโทนสีขาว เทา น้ำตาล เพิ่มมิติด้วยหลังคาทรงปั้นหยาสีเข้มซ้อนระดับให้บ้านมีเอกลักษณ์ ผนังตกแต่งด้วยหินธรรมชาติที่ให้ความรู้สึกอบอุ่นและสง่างาม จัดเต็มด้วยฟังก์ชันครบครัน ไม่ว่าจะเป็นห้องนั่งเล่น ห้องครัว หรือพื้นที่รับประทานอาหาร ด้านหน้าบ้านมีสระว่ายน้ำสไตล์รีสอร์ท ช่วยเติมเต็มความรู้สึกผ่อนคลาย และสะดวกสบายในทุกมิติ

ขนาดที่ดิน

84 ตร.ว.

ที่ดินกว้าง

14 ม.

4

5

2

261

3.75

ล้านบาท

คอนเทมโพรารี่

คาซึโอะ M | Katsuo M

คาซึโอะ บ้านสองชั้นสไตล์คอนเทมโพรารี่ โทนสีหลักของบ้านเลือกใช้สีขาว สีเทา และสีน้ำตาลหลังคาทรงปั้นหยาสีเทาเข้มให้ความรู้สึกแข็งแรง เรียบหรู และทันสมัย ช่องกระจกบานใหญ่ช่วยดึงแสงธรรมชาติเข้าสู่ภายใน ทำให้บรรยากาศโปร่งโล่ง สบาย เหมาะสำหรับครอบครัวที่ต้องการความลงตัวทั้งในด้านฟังก์ชันการใช้งานและดีไซน์ที่ทันสมัย

ขนาดที่ดิน

61 ตร.ว.

ที่ดินกว้าง

12 ม.

4

4

2

241

4.15

ล้านบาท

โมเดิร์น

เดอะ คราวน์ L EVA | The Clound L EVA

“The Cloud EVA” ออกแบบในสไตล์ Luxury Modern Minimal เน้นความโปร่งโล่ง เส้นสายเรียบคม และการใช้พื้นที่เปิดกว้าง ให้บรรยากาศสงบหรูเหมือนลอยอยู่เหนือความวุ่นวาย ราวกับ “บ้านที่ลอยอยู่บนก้อนเมฆ” บ้านหลังนี้เหมาะกับครอบครัวใหญ่ที่ต้องการพื้นที่หรูหรา ฟังก์ชันครบ และภาพลักษณ์ระดับพรีเมียม

ขนาดที่ดิน

104 ตร.ว.

ที่ดินกว้าง

16 ม.

4

3

2

327

6.55

ล้านบาท

Untitled

ติดตาม

facebook
youtube
Line2
tiktok

แบบสำรวจ

  • แบบสำรวจความต้องการ

  • ร้องเรียนบริการ

  • ประเมินความพึงพอใจ

หจก.แอ็ดไมร คอนสตรัคชั่น

306/24-25 มิตรภาพซอย 4 ต.ในเมือง
อ.เมืองนครราชสีมา จ.นครราชสีมา
30000

เวลาทำการ : จันทร์ - เสาร์
เวลา 08.00 - 17.00 น.

© สงวนลิขสิทธิ์ หจก. แอ็ดไมร คอนสตรัคชั่น พ.ศ. 2567

Line