home_plan_banner

ฉัตรเงิน L I Chat Ngoen L

คอนเทมโพรารี่

บ้านสองชั้น

บ้าน 2 ชั้น สไตล์คอนเทมโพรารี่โมเดิร์น โดดเด่นผ่านการออกแบบด้วยโทนสีขาว เทา น้ำตาล เพิ่มมิติด้วยหลังคาทรงปั้นหยาสีเข้มซ้อนระดับให้บ้านมีเอกลักษณ์ ผนังตกแต่งด้วยหินธรรมชาติที่ให้ความรู้สึกอบอุ่นและสง่างาม จัดเต็มด้วยฟังก์ชันครบครัน ไม่ว่าจะเป็นห้องนั่งเล่น ห้องครัว หรือพื้นที่รับประทานอาหาร ด้านหน้าบ้านมีสระว่ายน้ำสไตล์รีสอร์ท ช่วยเติมเต็มความรู้สึกผ่อนคลาย และสะดวกสบายในทุกมิติ

รายละเอียดบ้าน

3.75

ล้านบาท

ห้องนอน

4

ห้อง

จำนวนห้องรับแขก

2

ห้อง

ขนาดที่ดิน

84.02

ตร.ว.

จำนวนห้องน้ำ

5

ห้อง

จำนวนชั้น

2

ชั้น

พื้นที่ใช้สอยตัวบ้าน

261.50

ตร.ม.

กว้าง x ลึก

14.00 x 12.70

เมตร

plan-floor-1

แปลนบ้าน ชั้น 1

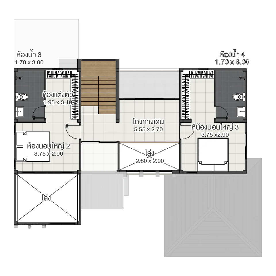
plan-floor-2

แปลนบ้าน ชั้น 2

รวมภาพออกแบบ

วีดีโอออกแบบบ้าน

ติดต่อแอ็ดไมร

ประเมิณราคาฟรีภายใน 4 ชั่วโมง

แบบบ้านที่คล้ายกัน

ไทยประยุกต์

ตามฝัน S | TAMFAN S

ตามฝัน บ้านสองชั้นสไตล์ไทยประยุกต์ ผสมผสานความงามแบบดั้งเดิมเข้ากับดีไซน์ร่วมสมัยได้อย่างลง ตัวบ้านเลือกใช้โทนสีขาวตัดกับหลังคาทรงจั่วสีเทา ชั้นบนออกแบบด้วยงานไม้ระแนงตกแต่งช่วยสร้างเอกลักษณ์ในสไตล์ไทยประยุกต์ พร้อมเพิ่มความโปร่งและช่วยระบายอากาศได้ดี ชั้นล่างเป็นพื้นที่ใช้สำหรับรับแขก พักผ่อน หรือทำกิจกรรมครอบครัว ตอบโจทย์การใช้งานเฉพาะคุณ

ขนาดที่ดิน

44 ตร.ว.

ที่ดินกว้าง

14 ม.

3

3

2

135

2.60

ล้านบาท

คอนเทมโพรารี่

ไอวี | Ivy

ไอวี่ บ้านสองชั้นสไตล์คลาสสิก ที่ผสานความสง่างามและความทันสมัยเข้าไว้ด้วยกัน ตัวบ้านเลือกใช้โทนสีฟ้าอ่อนและสีขาว ตัดกับหลังคาทรงปั้นหยาสีเทาเข้ม สร้างบรรยากาศที่หรูหราและอบอุ่น พื้นที่ใช้สอยภายในถูกจัดวางอย่างครบครัน บ้าน ไอวี่ เหมาะสำหรับผู้ที่กำลังมองหา แบบบ้านสองชั้นสไตล์คลาสสิก ที่ผสมผสานความหรูหรา ความทันสมัย และตอบโจทย์การใช้งานได้อย่างลงตัว

ขนาดที่ดิน

47 ตร.ว.

ที่ดินกว้าง

8 ม.

3

3

1

138

2.80

ล้านบาท

โมเดิร์น

เดอะ คราวน์ L EVA | The Clound L EVA

“The Cloud EVA” ออกแบบในสไตล์ Luxury Modern Minimal เน้นความโปร่งโล่ง เส้นสายเรียบคม และการใช้พื้นที่เปิดกว้าง ให้บรรยากาศสงบหรูเหมือนลอยอยู่เหนือความวุ่นวาย ราวกับ “บ้านที่ลอยอยู่บนก้อนเมฆ” บ้านหลังนี้เหมาะกับครอบครัวใหญ่ที่ต้องการพื้นที่หรูหรา ฟังก์ชันครบ และภาพลักษณ์ระดับพรีเมียม

ขนาดที่ดิน

104 ตร.ว.

ที่ดินกว้าง

16 ม.

4

3

2

327

6.55

ล้านบาท

คลาสสิค

มินตรา | Mintra

"มินตรา" บ้านสองชั้นสไตล์คลาสสิก ผสมผสานโทนสีขาวและสีเทาอย่างลงตัว การออกแบบเน้นโทนสีขาว หน้าต่างและประตูบานใหญ่เลือกใช้อะลูมิเนียมสีดำ ตัดกับผนังสีอ่อนสะท้อนรสนิยมให้ความรู้สึกเรียบหรูและมีเอกลักษณ์ ภายในบ้านออกแบบเพื่อการใช้งานเฉพาะคุณ ในพื้นที่ใช้สอย 211 ตร.ม. ทุกองค์ประกอบถูกเลือกสรรด้วยวัสดุคุณภาพเพื่อบ้านที่ได้มาตรฐานอย่างแท้จริง"

ขนาดที่ดิน

58 ตร.ว.

ที่ดินกว้าง

12 ม.

4

3

2

211

3.59

ล้านบาท

คลาสสิค

เอเมอรี | Emery

“Emery” มีรากความหมายถึง ความแข็งแกร่งและหรูหรา บ้านเอเมอรี่จึงถูกออกแบบมาในสไตล์ Classic Contemporary ที่ผสมผสานความสง่างามเหนือกาลเวลาเข้ากับฟังก์ชันการใช้ชีวิตสมัยใหม่ เน้นความสมดุล ความมั่นคง และความโอ่อ่า เหมาะสำหรับครอบครัวที่ต้องการบ้านที่สะท้อนทั้งความสำเร็จและความอบอุ่น

ขนาดที่ดิน

51 ตร.ว.

ที่ดินกว้าง

9 ม.

4

3

2

199

3.50

ล้านบาท

Untitled

ติดตาม

facebook
youtube
Line2
tiktok

แบบสำรวจ

  • แบบสำรวจความต้องการ

  • ร้องเรียนบริการ

  • ประเมินความพึงพอใจ

หจก.แอ็ดไมร คอนสตรัคชั่น

306/24-25 มิตรภาพซอย 4 ต.ในเมือง
อ.เมืองนครราชสีมา จ.นครราชสีมา
30000

เวลาทำการ : จันทร์ - เสาร์
เวลา 08.00 - 17.00 น.

© สงวนลิขสิทธิ์ หจก. แอ็ดไมร คอนสตรัคชั่น พ.ศ. 2567

Line