home_plan_banner

ตามฝัน M I TAMFAN M

ไทยประยุกต์

บ้านสองชั้น

ตามฝัน บ้านสองชั้นสไตล์ไทยประยุกต์ ผสมผสานความงามแบบดั้งเดิมเข้ากับดีไซน์ร่วมสมัยได้อย่างลง ตัวบ้านเลือกใช้โทนสีขาวตัดกับหลังคาทรงจั่วสีเทา ชั้นบนออกแบบด้วยงานไม้ระแนงตกแต่งช่วยสร้างเอกลักษณ์ในสไตล์ไทยประยุกต์ พร้อมเพิ่มความโปร่งและช่วยระบายอากาศได้ดี ชั้นล่างเป็นพื้นที่ใช้สำหรับรับแขก พักผ่อน หรือทำกิจกรรมครอบครัว ตอบโจทย์การใช้งานเฉพาะคุณ

รายละเอียดบ้าน

3.60

ล้านบาท

ห้องนอน

3

ห้อง

จำนวนห้องรับแขก

2

ห้อง

ขนาดที่ดิน

96.22

ตร.ว.

จำนวนห้องน้ำ

2

ห้อง

จำนวนชั้น

2

ชั้น

พื้นที่ใช้สอยตัวบ้าน

196.50

ตร.ม.

กว้าง x ลึก

24.30 x 8.60

เมตร

plan-floor-1

แปลนบ้าน ชั้น 1

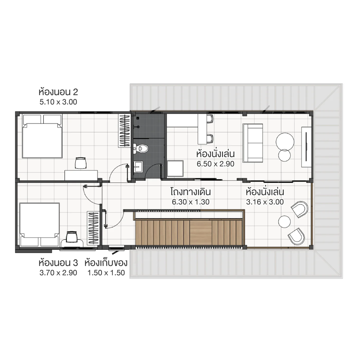
plan-floor-2

แปลนบ้าน ชั้น 2

รวมภาพออกแบบ

วีดีโอออกแบบบ้าน

ติดต่อแอ็ดไมร

ประเมิณราคาฟรีภายใน 4 ชั่วโมง

แบบบ้านที่คล้ายกัน

โมเดิร์น

ทิมเบอร์ | Timber

บ้านสไตล์คอนเทมโพรารี่ โมเดิร์นหลังนี้ถูกออกแบบภายใต้แนวคิด “เรียบง่าย ทันสมัย อยู่สบายในทุกวัน” ตัวบ้านสองชั้นเน้นความเรียบง่ายแต่ยังคงความทันสมัย พื้นที่ใช้สอยจัดวางอย่างลงตัว ผสานวัสดุคุณภาพและโทนสีขาว เทา น้ำ พร้อมไม้ระแนงตกแต่งช่วยเพิ่มมิติ และให้ความรู้สึกอบอุ่นยิ่งขึ้น และตอบโจทย์การพักผ่อนที่แท้จริง

ขนาดที่ดิน

46 ตร.ว.

ที่ดินกว้าง

7 ม.

4

2

2

172

2.85

ล้านบาท

คอนเทมโพรารี่

ฉัตรเงิน M | Chat Ngoen M

บ้าน 2 ชั้น สไตล์คอนเทมโพรารี่โมเดิร์น โดดเด่นผ่านการออกแบบด้วยโทนสีขาว เทา น้ำตาล เพิ่มมิติด้วยหลังคาทรงปั้นหยาสีเข้มซ้อนระดับให้บ้านมีเอกลักษณ์ ผนังตกแต่งด้วยหินธรรมชาติที่ให้ความรู้สึกอบอุ่นและสง่างาม จัดเต็มด้วยฟังก์ชันครบครัน ไม่ว่าจะเป็นห้องนั่งเล่น ห้องครัว หรือพื้นที่รับประทานอาหาร ด้านหน้าบ้านมีสระว่ายน้ำสไตล์รีสอร์ท ช่วยเติมเต็มความรู้สึกผ่อนคลาย และสะดวกสบายในทุกมิติ

ขนาดที่ดิน

67 ตร.ว.

ที่ดินกว้าง

13 ม.

4

5

1

207

4.40

ล้านบาท

คลาสสิค

เอเวลีน | Evelyne

“เอเวลีน” ออกแบบในสไตล์ Classic Elegance ที่เน้นความหรูหรา สง่างาม และภูมิฐานในแบบบ้านสองชั้น เส้นสายสถาปัตยกรรมที่ลงตัว สะท้อนความมั่นคงและมีระดับ เหมาะสำหรับครอบครัวที่ต้องการทั้ง ภาพลักษณ์และการใช้งานจริง

ขนาดที่ดิน

53 ตร.ว.

ที่ดินกว้าง

9 ม.

4

3

1

181

3.20

ล้านบาท

โมเดิร์น

เดอะ คราวน์ S UNA | The Clound S UNA

บ้านเดอะคลาวด์ ยูนา ออกแบบในสไตล์โมเดิร์น เน้นความโปร่ง โล่ง และดีไซน์เรียบหรู เหมาะสำหรับครอบครัวใหญ่ที่ต้องการทั้งความสะดวกสบายและภาพลักษณ์ที่ดูภูมิฐาน

ขนาดที่ดิน

82 ตร.ว.

ที่ดินกว้าง

13 ม.

4

3

2

287

4.60

ล้านบาท

คอนเทมโพรารี่

คาซึโอะ L | Katsuo L

คาซึโอะ บ้านสองชั้นสไตล์คอนเทมโพรารี่ โทนสีหลักของบ้านเลือกใช้สีขาว สีเทา และสีน้ำตาลหลังคาทรงปั้นหยาสีเทาเข้มให้ความรู้สึกแข็งแรง เรียบหรู และทันสมัย ช่องกระจกบานใหญ่ช่วยดึงแสงธรรมชาติเข้าสู่ภายใน ทำให้บรรยากาศโปร่งโล่ง สบาย เหมาะสำหรับครอบครัวที่ต้องการความลงตัวทั้งในด้านฟังก์ชันการใช้งานและดีไซน์ที่ทันสมัย

ขนาดที่ดิน

55 ตร.ว.

ที่ดินกว้าง

12 ม.

4

3

2

252

4.10

ล้านบาท

Untitled

ติดตาม

facebook
youtube
Line2
tiktok

แบบสำรวจ

  • แบบสำรวจความต้องการ

  • ร้องเรียนบริการ

  • ประเมินความพึงพอใจ

หจก.แอ็ดไมร คอนสตรัคชั่น

306/24-25 มิตรภาพซอย 4 ต.ในเมือง
อ.เมืองนครราชสีมา จ.นครราชสีมา
30000

เวลาทำการ : จันทร์ - เสาร์
เวลา 08.00 - 17.00 น.

© สงวนลิขสิทธิ์ หจก. แอ็ดไมร คอนสตรัคชั่น พ.ศ. 2567

Line