home_plan_banner

กานดา I KANDA

คอนเทมโพรารี่

บ้านสองชั้น

“กานดา” คือบ้านสไตล์ Contemporary Classic ที่ผสมผสานความทันสมัยเข้ากับกลิ่นอายความหรูหราแบบเรียบง่าย ออกแบบเป็นบ้านสองชั้นที่ใช้พื้นที่อย่างคุ้มค่า เหมาะกับครอบครัวที่ต้องการบ้านฟังก์ชันครบ ในขนาดกะทัดรัดแต่ยังคงความภูมิฐาน

รายละเอียดบ้าน

2.80

ล้านบาท

ห้องนอน

4

ห้อง

จำนวนห้องรับแขก

1

ห้อง

ขนาดที่ดิน

44.00

ตร.ว.

จำนวนห้องน้ำ

3

ห้อง

จำนวนชั้น

2

ชั้น

พื้นที่ใช้สอยตัวบ้าน

148.00

ตร.ม.

กว้าง x ลึก

7.00 x 10.70

เมตร

plan-floor-1

แปลนบ้าน ชั้น 1

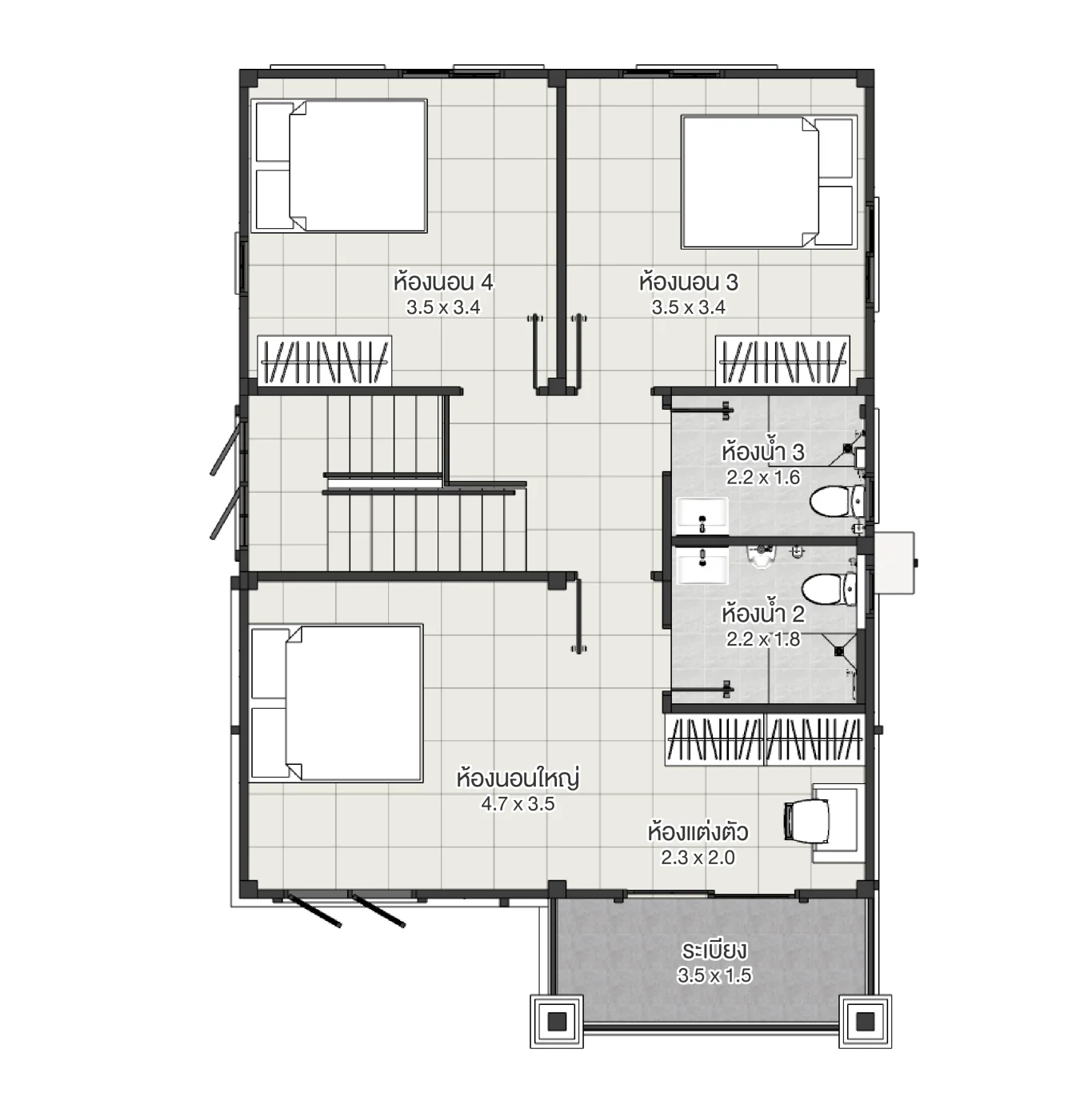
plan-floor-2

แปลนบ้าน ชั้น 2

รวมภาพออกแบบ

วีดีโอออกแบบบ้าน

ติดต่อแอ็ดไมร

ประเมิณราคาฟรีภายใน 4 ชั่วโมง

แบบบ้านที่คล้ายกัน

คลาสสิค

เกลเชียร์ | GLACIER

บ้านเกลเชียร์ออกแบบในสไตล์ คลาสสิกสองชั้น (Classic 2-storey) เน้นความภูมิฐาน หรูหรา และลงตัว เหมาะกับครอบครัวที่ต้องการภาพลักษณ์มั่นคงและพื้นที่ใช้สอยครบทุกฟังก์ชัน

ขนาดที่ดิน

57 ตร.ว.

ที่ดินกว้าง

11 ม.

3

3

1

174

3.20

ล้านบาท

ไทยประยุกต์

ตามฝัน S | TAMFAN S

ตามฝัน บ้านสองชั้นสไตล์ไทยประยุกต์ ผสมผสานความงามแบบดั้งเดิมเข้ากับดีไซน์ร่วมสมัยได้อย่างลง ตัวบ้านเลือกใช้โทนสีขาวตัดกับหลังคาทรงจั่วสีเทา ชั้นบนออกแบบด้วยงานไม้ระแนงตกแต่งช่วยสร้างเอกลักษณ์ในสไตล์ไทยประยุกต์ พร้อมเพิ่มความโปร่งและช่วยระบายอากาศได้ดี ชั้นล่างเป็นพื้นที่ใช้สำหรับรับแขก พักผ่อน หรือทำกิจกรรมครอบครัว ตอบโจทย์การใช้งานเฉพาะคุณ

ขนาดที่ดิน

44 ตร.ว.

ที่ดินกว้าง

14 ม.

3

3

2

135

2.60

ล้านบาท

คลาสสิค

เอเวลีน | Evelyne

“เอเวลีน” ออกแบบในสไตล์ Classic Elegance ที่เน้นความหรูหรา สง่างาม และภูมิฐานในแบบบ้านสองชั้น เส้นสายสถาปัตยกรรมที่ลงตัว สะท้อนความมั่นคงและมีระดับ เหมาะสำหรับครอบครัวที่ต้องการทั้ง ภาพลักษณ์และการใช้งานจริง

ขนาดที่ดิน

53 ตร.ว.

ที่ดินกว้าง

9 ม.

4

3

1

181

3.20

ล้านบาท

ไทยประยุกต์

ขุนพันธ์ | Khun-Pun

บ้านไทยประยุกต์สไตล์ร่วมสมัย ถูกออกแบบให้สวยงามและเหมาะกับสภาพอากาศเมืองไทย โดดเด่นด้วยการยกใต้ถุนสูง ดีไซน์หลังคาทรงมะนิลาสีน้ำตาล ตัดกับผนังภายนอกผสมผสานสีขาว ทำให้บ้านดูอบอุ่นและกลมกลืนกับธรรมชาติ หน้าต่างกระจกบานใหญ่ช่วยดึงแสงธรรมชาติเข้าภายใน ทำให้บรรยากาศโปร่งสบาย เหมาะกับครอบครัวที่ต้องการบ้านที่ผสมผสานระหว่างความงดงามแบบไทยดั้งเดิมที่มาพร้อมกับฟังก์ชันทันสมัย

ขนาดที่ดิน

50 ตร.ว.

ที่ดินกว้าง

11 ม.

3

3

1

183

3.70

ล้านบาท

คอนเทมโพรารี่

ฉัตรเงิน L | Chat Ngoen L

บ้าน 2 ชั้น สไตล์คอนเทมโพรารี่โมเดิร์น โดดเด่นผ่านการออกแบบด้วยโทนสีขาว เทา น้ำตาล เพิ่มมิติด้วยหลังคาทรงปั้นหยาสีเข้มซ้อนระดับให้บ้านมีเอกลักษณ์ ผนังตกแต่งด้วยหินธรรมชาติที่ให้ความรู้สึกอบอุ่นและสง่างาม จัดเต็มด้วยฟังก์ชันครบครัน ไม่ว่าจะเป็นห้องนั่งเล่น ห้องครัว หรือพื้นที่รับประทานอาหาร ด้านหน้าบ้านมีสระว่ายน้ำสไตล์รีสอร์ท ช่วยเติมเต็มความรู้สึกผ่อนคลาย และสะดวกสบายในทุกมิติ

ขนาดที่ดิน

84 ตร.ว.

ที่ดินกว้าง

14 ม.

4

5

2

261

3.75

ล้านบาท

Untitled

ติดตาม

facebook
youtube
Line2
tiktok

แบบสำรวจ

  • แบบสำรวจความต้องการ

  • ร้องเรียนบริการ

  • ประเมินความพึงพอใจ

หจก.แอ็ดไมร คอนสตรัคชั่น

306/24-25 มิตรภาพซอย 4 ต.ในเมือง
อ.เมืองนครราชสีมา จ.นครราชสีมา
30000

เวลาทำการ : จันทร์ - เสาร์
เวลา 08.00 - 17.00 น.

© สงวนลิขสิทธิ์ หจก. แอ็ดไมร คอนสตรัคชั่น พ.ศ. 2567

Line