home_plan_banner

ทิมเบอร์ I Timber

โมเดิร์น

บ้านสองชั้น

บ้านสไตล์คอนเทมโพรารี่ โมเดิร์นหลังนี้ถูกออกแบบภายใต้แนวคิด “เรียบง่าย ทันสมัย อยู่สบายในทุกวัน” ตัวบ้านสองชั้นเน้นความเรียบง่ายแต่ยังคงความทันสมัย พื้นที่ใช้สอยจัดวางอย่างลงตัว ผสานวัสดุคุณภาพและโทนสีขาว เทา น้ำ พร้อมไม้ระแนงตกแต่งช่วยเพิ่มมิติ และให้ความรู้สึกอบอุ่นยิ่งขึ้น และตอบโจทย์การพักผ่อนที่แท้จริง

รายละเอียดบ้าน

2.85

ล้านบาท

ห้องนอน

4

ห้อง

จำนวนห้องรับแขก

2

ห้อง

จำนวนที่จอดรถ

1

คัน

ขนาดที่ดิน

46.02

ตร.ว.

จำนวนห้องน้ำ

2

ห้อง

จำนวนชั้น

2

ชั้น

พื้นที่ใช้สอยตัวบ้าน

172.00

ตร.ม.

กว้าง x ลึก

7.80 x 10.80

เมตร

plan-floor-1

แปลนบ้าน ชั้น 1

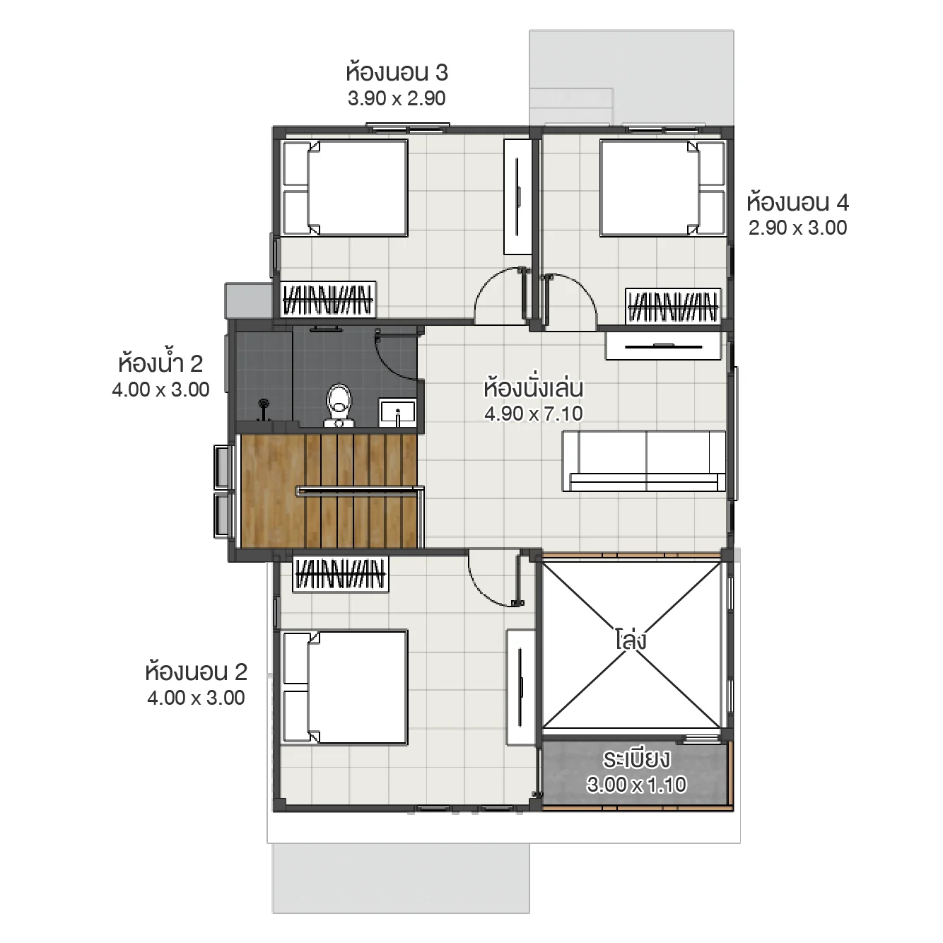
plan-floor-2

แปลนบ้าน ชั้น 2

รวมภาพออกแบบ

วีดีโอออกแบบบ้าน

ติดต่อแอ็ดไมร

ประเมิณราคาฟรีภายใน 4 ชั่วโมง

แบบบ้านที่คล้ายกัน

โมเดิร์น

เดอะ คราวน์ L EVA | The Clound L EVA

“The Cloud EVA” ออกแบบในสไตล์ Luxury Modern Minimal เน้นความโปร่งโล่ง เส้นสายเรียบคม และการใช้พื้นที่เปิดกว้าง ให้บรรยากาศสงบหรูเหมือนลอยอยู่เหนือความวุ่นวาย ราวกับ “บ้านที่ลอยอยู่บนก้อนเมฆ” บ้านหลังนี้เหมาะกับครอบครัวใหญ่ที่ต้องการพื้นที่หรูหรา ฟังก์ชันครบ และภาพลักษณ์ระดับพรีเมียม

ขนาดที่ดิน

104 ตร.ว.

ที่ดินกว้าง

16 ม.

4

3

2

327

6.55

ล้านบาท

ไทยประยุกต์

ตามฝัน M | TAMFAN M

ตามฝัน บ้านสองชั้นสไตล์ไทยประยุกต์ ผสมผสานความงามแบบดั้งเดิมเข้ากับดีไซน์ร่วมสมัยได้อย่างลง ตัวบ้านเลือกใช้โทนสีขาวตัดกับหลังคาทรงจั่วสีเทา ชั้นบนออกแบบด้วยงานไม้ระแนงตกแต่งช่วยสร้างเอกลักษณ์ในสไตล์ไทยประยุกต์ พร้อมเพิ่มความโปร่งและช่วยระบายอากาศได้ดี ชั้นล่างเป็นพื้นที่ใช้สำหรับรับแขก พักผ่อน หรือทำกิจกรรมครอบครัว ตอบโจทย์การใช้งานเฉพาะคุณ

ขนาดที่ดิน

96 ตร.ว.

ที่ดินกว้าง

24 ม.

3

2

2

196

3.60

ล้านบาท

คอนเทมโพรารี่

ไอวี | Ivy

ไอวี่ บ้านสองชั้นสไตล์คลาสสิก ที่ผสานความสง่างามและความทันสมัยเข้าไว้ด้วยกัน ตัวบ้านเลือกใช้โทนสีฟ้าอ่อนและสีขาว ตัดกับหลังคาทรงปั้นหยาสีเทาเข้ม สร้างบรรยากาศที่หรูหราและอบอุ่น พื้นที่ใช้สอยภายในถูกจัดวางอย่างครบครัน บ้าน ไอวี่ เหมาะสำหรับผู้ที่กำลังมองหา แบบบ้านสองชั้นสไตล์คลาสสิก ที่ผสมผสานความหรูหรา ความทันสมัย และตอบโจทย์การใช้งานได้อย่างลงตัว

ขนาดที่ดิน

47 ตร.ว.

ที่ดินกว้าง

8 ม.

3

3

1

138

2.80

ล้านบาท

โมเดิร์น

เดอะ คราวน์ M DA | The Clound M DA

บ้าน The Cloud DA ได้แรงบันดาลใจจาก ความโปร่งเบาและล่องลอยของก้อนเมฆ ถ่ายทอดออกมาในรูปแบบบ้านสไตล์ Modern Minimal ที่เรียบง่าย สง่างาม และเปิดรับแสงธรรมชาติทุกมุมมอง เสมือนการอยู่อาศัยท่ามกลางความโปร่งสบายบนท้องฟ้า

ขนาดที่ดิน

85 ตร.ว.

ที่ดินกว้าง

12 ม.

4

3

2

284

5.30

ล้านบาท

คลาสสิค

เอเมอรี | Emery

“Emery” มีรากความหมายถึง ความแข็งแกร่งและหรูหรา บ้านเอเมอรี่จึงถูกออกแบบมาในสไตล์ Classic Contemporary ที่ผสมผสานความสง่างามเหนือกาลเวลาเข้ากับฟังก์ชันการใช้ชีวิตสมัยใหม่ เน้นความสมดุล ความมั่นคง และความโอ่อ่า เหมาะสำหรับครอบครัวที่ต้องการบ้านที่สะท้อนทั้งความสำเร็จและความอบอุ่น

ขนาดที่ดิน

51 ตร.ว.

ที่ดินกว้าง

9 ม.

4

3

2

199

3.50

ล้านบาท

Untitled

ติดตาม

facebook
youtube
Line2
tiktok

แบบสำรวจ

  • แบบสำรวจความต้องการ

  • ร้องเรียนบริการ

  • ประเมินความพึงพอใจ

หจก.แอ็ดไมร คอนสตรัคชั่น

306/24-25 มิตรภาพซอย 4 ต.ในเมือง
อ.เมืองนครราชสีมา จ.นครราชสีมา
30000

เวลาทำการ : จันทร์ - เสาร์
เวลา 08.00 - 17.00 น.

© สงวนลิขสิทธิ์ หจก. แอ็ดไมร คอนสตรัคชั่น พ.ศ. 2567

Line