home_plan_banner

ญารินดา S I Yarinda S

คอนเทมโพรารี่

บ้านชั้นเดียว

บ้านชั้นเดียวสไตล์คอนเทมโพรารี่โมเดิร์น โดดเด่นด้วยโทนสีขาว สีเทา และสีน้ำตาลให้ความรู้สึกอบอุ่น สบายตา การออกแบบเน้นความเรียบหรูทันสมัย พร้อมฟังก์ชันครบครัน ทั้งที่จอดรถ พื้นที่นั่งเล่น และพื้นที่ภายในที่โปร่งโล่งรับแสงธรรมชาติได้ดี หลังคาทรงปั้นหยาช่วยเพิ่มมิติให้บ้านดูมีเอกลักษณ์ มาพร้อมกับวัสดุคุณภาพเพื่อบ้านที่ได้มาตรฐาน ทำให้บ้านหลังนี้ไม่เพียงแค่สวย แต่ยังแข็งแรง อยู่สบาย และดูแลง่ายในระยะยาว

รายละเอียดบ้าน

2.50

ล้านบาท

ห้องนอน

3

ห้อง

จำนวนห้องรับแขก

1

ห้อง

จำนวนที่จอดรถ

1

คัน

ขนาดที่ดิน

74.36

ตร.ว.

จำนวนห้องน้ำ

2

ห้อง

จำนวนชั้น

1

ชั้น

พื้นที่ใช้สอยตัวบ้าน

149.40

ตร.ม.

กว้าง x ลึก

13.60 x 11.90

เมตร

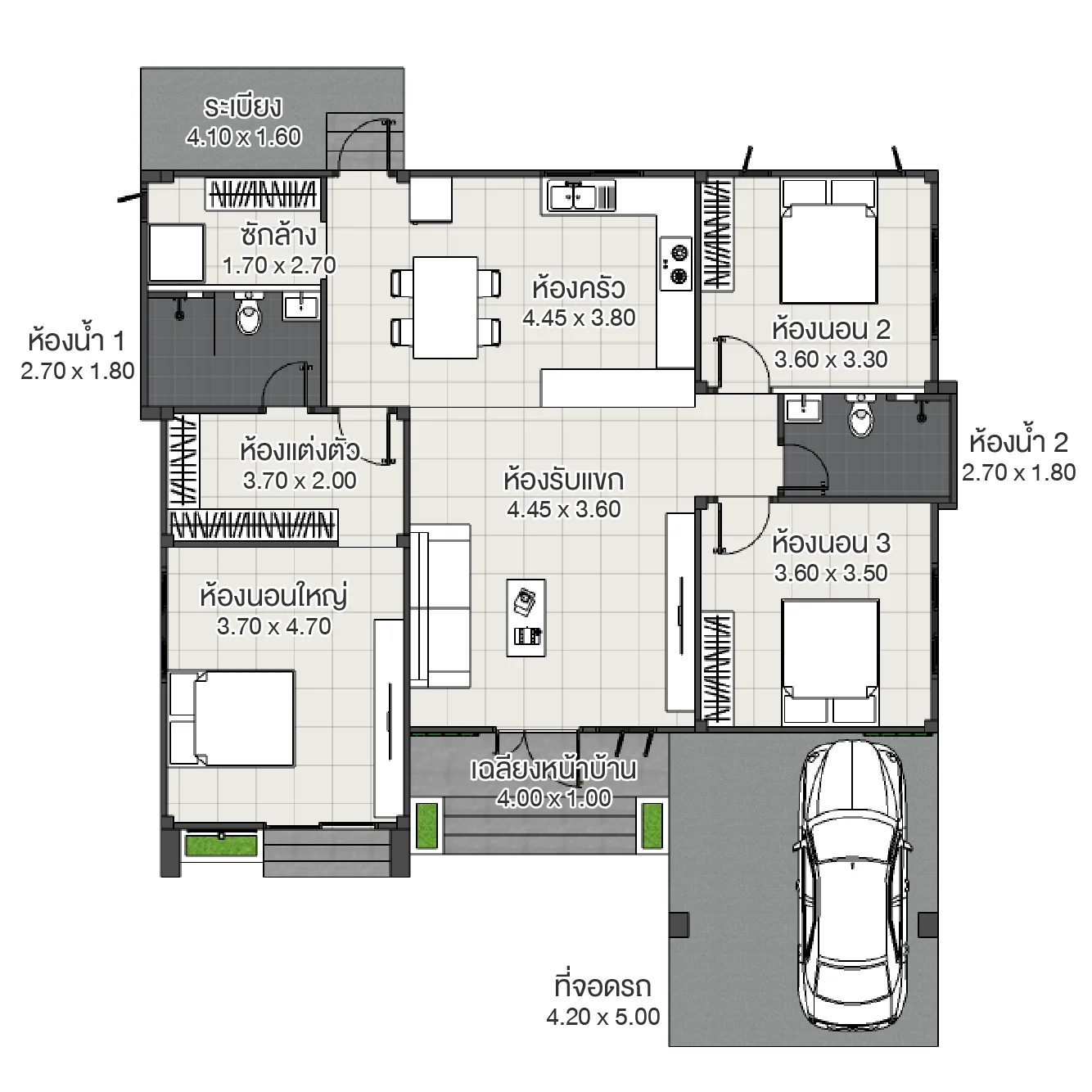
plan-floor-1

แปลนบ้าน ชั้น 1

รวมภาพออกแบบ

วีดีโอออกแบบบ้าน

ติดต่อแอ็ดไมร

ประเมิณราคาฟรีภายใน 4 ชั่วโมง

แบบบ้านที่คล้ายกัน

เจแปน

อาซามิ | Asami

อาซามิ บ้านสไตล์มินิมอล เรียบง่าย แต่แฝงด้วยเสน่ห์เฉพาะตัว ตัวบ้านถูกออกแบบด้วยโทนสีขาวสะอาดตา ช่วยให้บ้านดูโปร่ง โล่ง สบาย ตัดกับสีน้ำตาลอ่อนจากไม้ระแนงตกแต่ง พร้อมหลังคาทรงจั่วสีเทา เพิ่มความรู้สึกอบอุ่นและมีมิติให้กับตัวบ้าน เหมาะสำหรับครอบครัวที่ชอบบรรยากาศผ่อนคลาย และต้องการพื้นที่ใช้สอยที่ลงตัว บ้านมินิมอลหลังนี้จึงตอบโจทย์ไลฟ์สไตล์การใช้ชีวิตที่เน้นความสงบและความสมดุลในทุกวัน

ขนาดที่ดิน

75 ตร.ว.

ที่ดินกว้าง

17 ม.

3

2

1

139

2.50

ล้านบาท

คอนเทมโพรารี่

แทนไท | Tantai

แทนไท บ้านชั้นเดียว บ้านสไตล์คอนเทมโพรารี่โมเดิร์น (Contemporary Modern) ที่ออกแบบอย่างประณีต ผสมผสานความเรียบง่ายเข้ากับความอบอุ่น หลังคาทรงปั้นหยา เพิ่มความมีมิติให้ตัวบ้านโดยเลือกใช้สีขาว และสีเทา มาพร้อมพื้นที่ใช้สอย 134 ตร.ม. รองรับทุกไลฟ์สไตล์ของทุกคนในครอบครัว

ขนาดที่ดิน

74 ตร.ว.

ที่ดินกว้าง

13 ม.

4

4

1

134

2.40

ล้านบาท

คอนเทมโพรารี่

ชลธี S | Cholathee S

“ชลธี” บ้านหนึ่งชั้น โดดเด่นด้วยการออกแบบที่เป็นเอกลักษณ์ด้วยหลังคาทรงปั้นหยาที่ให้ความรู้สึกมั่นคง ผสมผสานโทนสีขาว เทา น้ำตาล สะท้อนถึงความสง่างามเหนือกาลเวลา พร้อมเลือกใช้วัสดุคุณภาพ เพื่อบ้านที่แข็งแรง ทนทาน และสวยงามน่าอยู่ทุกวัน พร้อมพื้นที่ใช้สอยที่ตอบโจทย์ต่อการใช้งานและการพักผ่อนอย่างแท้จริง

ขนาดที่ดิน

73 ตร.ว.

ที่ดินกว้าง

10 ม.

3

2

1

166

3.00

ล้านบาท

คอนเทมโพรารี่

อาริน | Arin

"อาริน: อ้อมกอดแห่งความอบอุ่นของครอบครัว" เน้นความนุ่มนวลด้วยการใช้โทนสีเอิร์ธโทนและวัสดุที่มีผิวสัมผัสธรรมชาติ ออกแบบพื้นที่หน้ากว้างที่ดูโอ่อ่าแต่เป็นกันเอง เพื่อเชื่อมโยงทุกความสัมพันธ์ในบ้านเข้าด้วยกัน เป็นบ้านที่ให้ความรู้สึกปลอดภัยในทุกตารางเมตร มอบนิยามใหม่ของความหรูหราที่สัมผัสได้ผ่านความสบายใจและการใช้งานที่ตอบโจทย์ทุกคนในบ้าน

ขนาดที่ดิน

84 ตร.ว.

ที่ดินกว้าง

18 ม.

3

2

1

142

2.45

ล้านบาท

คลาสสิค

เอนเคลฟ | Enclave

“Enclave” ถูกออกแบบให้เป็นบ้านชั้นเดียวสไตล์ Classic Modern ที่ผสานความสง่างามเหนือกาลเวลาเข้ากับความเรียบง่ายและการใช้งานจริง ตัวบ้านให้ความรู้สึกมั่นคง น่าเชื่อถือ และสะท้อนรสนิยมที่หรูหราอย่างพอดี เหมาะกับครอบครัวที่ต้องการ ความอบอุ่น, ฟังก์ชันครบ, และพื้นที่ใช้สอยที่ลงตัว

ขนาดที่ดิน

76 ตร.ว.

ที่ดินกว้าง

13 ม.

3

2

1

142

2.50

ล้านบาท

Untitled

ติดตาม

facebook
youtube
Line2
tiktok

แบบสำรวจ

  • แบบสำรวจความต้องการ

  • ร้องเรียนบริการ

  • ประเมินความพึงพอใจ

หจก.แอ็ดไมร คอนสตรัคชั่น

306/24-25 มิตรภาพซอย 4 ต.ในเมือง
อ.เมืองนครราชสีมา จ.นครราชสีมา
30000

เวลาทำการ : จันทร์ - เสาร์
เวลา 08.00 - 17.00 น.

© สงวนลิขสิทธิ์ หจก. แอ็ดไมร คอนสตรัคชั่น พ.ศ. 2567

Line