home_plan_banner

มาริ I Mari

คอทเทจ

บ้านชั้นเดียว

ออกแบบด้วยเส้นสายเรียบง่ายแต่ให้ความรู้สึกอบอุ่น ตัวบ้านโดดเด่นด้วยหลังคาทรงจั่วสูงซ้อนกันแบบมีเอกลักษณ์ เลือกใช้โทนสีขาวเป็นหลัก ตัดกับกรอบประตูหน้าต่างสีดำและหลังคาสีเทาเข้ม บ้านถูกออกแบบให้โปร่งโล่งด้วยการใช้หน้าต่างบานกว้างและกระจกสูง ช่วยดึงแสงธรรมชาติเข้าสู่ภายใน เพิ่มความสว่างและถ่ายเทอากาศได้ดีเพื่อการพักผ่อนที่สมบูรณ์

รายละเอียดบ้าน

2.15

ล้านบาท

ห้องนอน

3

ห้อง

จำนวนห้องรับแขก

1

ห้อง

จำนวนที่จอดรถ

1

คัน

ขนาดที่ดิน

55.34

ตร.ว.

จำนวนห้องน้ำ

2

ห้อง

จำนวนชั้น

1

ชั้น

พื้นที่ใช้สอยตัวบ้าน

98.00

ตร.ม.

กว้าง x ลึก

10.10 x 10.70

เมตร

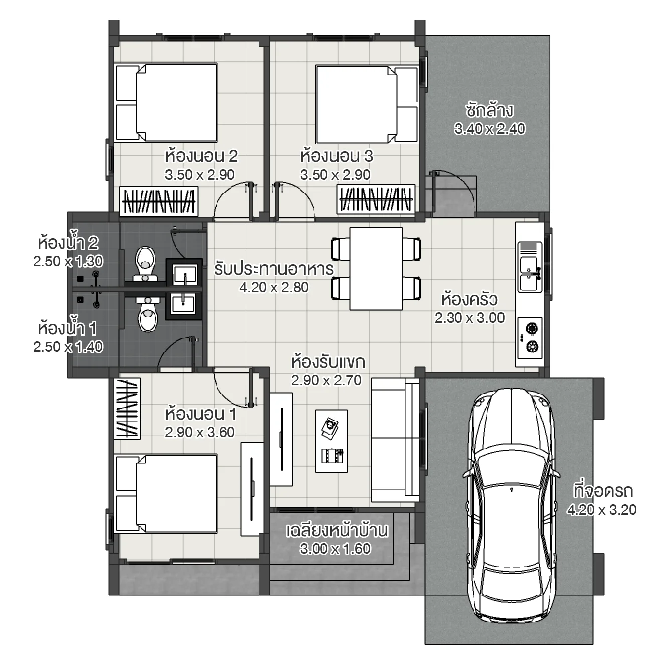
plan-floor-1

แปลนบ้าน ชั้น 1

รวมภาพออกแบบ

วีดีโอออกแบบบ้าน

ติดต่อแอ็ดไมร

ประเมิณราคาฟรีภายใน 4 ชั่วโมง

แบบบ้านที่คล้ายกัน

ฟาร์มเฮาส์

ไซลินี | SILENE

“ไซลินี” ได้รับแรงบันดาลใจจากความอบอุ่นของ บ้านสไตล์ฟาร์มเฮาส์ (Farmhouse Style) ที่ผสมผสานความคลาสสิกแบบชนบทตะวันตกเข้ากับการอยู่อาศัยแบบไทยในปัจจุบัน ออกแบบให้เรียบง่าย น่าอยู่ และโอบล้อมด้วยบรรยากาศที่เป็นกันเอง เหมาะสำหรับครอบครัวเล็กหรือคู่รักที่กำลังเริ่มต้นชีวิตครอบครัว

ขนาดที่ดิน

72 ตร.ว.

ที่ดินกว้าง

12 ม.

2

2

1

148

3.05

ล้านบาท

คอนเทมโพรารี่

มันตรา | Muntra

"มินตรา" บ้านสองชั้นสไตล์คลาสสิก ผสมผสานโทนสีขาวและสีเทาอย่างลงตัว การออกแบบเน้นโทนสีขาว หน้าต่างและประตูบานใหญ่เลือกใช้อะลูมิเนียมสีดำ ตัดกับผนังสีอ่อนสะท้อนรสนิยมให้ความรู้สึกเรียบหรูและมีเอกลักษณ์ ภายในบ้านออกแบบเพื่อการใช้งานเฉพาะคุณ ในพื้นที่ใช้สอย 211 ตร.ม. ทุกองค์ประกอบถูกเลือกสรรด้วยวัสดุคุณภาพเพื่อบ้านที่ได้มาตรฐานอย่างแท้จริง"

ขนาดที่ดิน

55 ตร.ว.

ที่ดินกว้าง

10 ม.

3

2

1

95

1.85

ล้านบาท

มินิมอล

ฮานะ | Hana

ฮานะ บ้านชั้นเดียวสไตล์มินิมอล เรียบง่ายแต่โดดเด่น ออกแบบโดยใช้โทนสีขาวตัดกับสีน้ำตาลมาพร้อมกับหลังคาทรงจั่วสีเทาอ่อน เพิ่มมิติให้บ้าน สวย อบอุ่น และมีเอกลักษณ์เฉพาะตัวฟังก์ชันการใช้งานตอบโจทย์ชีวิตประจำวัน บ้านหลังนี้จึงเหมาะสำหรับผู้ที่ต้องการ บ้านสไตล์มินิมอล ที่ลงตัวทั้งความสวยงามและการใช้งานmสะดวกสบายในทุก ๆ วัน

ขนาดที่ดิน

55 ตร.ว.

ที่ดินกว้าง

12 ม.

2

2

2

77

1.55

ล้านบาท

คลาสสิค

วาเนสซ่า | Vanessa

วาเนสซ่า บ้านสไตล์คลาสสิก ออกแบบบ้านในฝันที่ผสมผสานความสวยงามและความอบอุ่นอย่างลงตัว ตัวบ้านตกแต่งด้วยสีขาว Simply White ที่ให้ความรู้สึกโปร่งสบาย และสีน้ำตาล Rocky Ledge เพิ่มความอบอุ่นและความเป็นธรรมชาติให้กับบ้าน ตัดกับสีเชิงชาย Dark Brunette ให้บ้านดูมีมิติและโดดเด่นอย่างมีเอกลักษณ์ บริเวณเฉลียงหน้าบ้านเพิ่มความมีชีวิตชีวาด้วยสวนสไตล์อังกฤษให้ผู้อาศัยรู้สึกผ่อนคลายในทุกช่วงเวลา

ขนาดที่ดิน

67 ตร.ว.

ที่ดินกว้าง

9 ม.

3

2

1

125

2.25

ล้านบาท

คอนเทมโพรารี่

ฮิคาริ | Hikari

ฮิคาริ บ้านชั้นเดียวดีไซน์คอนเทมโพรารี่หลังนี้ โดดเด่นด้วยเส้นสายเรียบง่ายแต่แฝงด้วยความทันสมัย ตัวบ้านเลือกใช้โทนสีขาวสะอาดตา ตัดกับหลังคาทรงปั้นหยาสีเทา สร้างมิติและความอบอุ่นในเวลาเดียวกัน ฟังก์ชันภายในเน้นการใช้พื้นที่อย่างคุ้มค่าถือเป็นหนึ่งในแบบบ้าน คอนเทมโพรารี่ ที่เหมาะกับการใช้งานของทุกครอบครัว

ขนาดที่ดิน

74 ตร.ว.

ที่ดินกว้าง

14 ม.

4

2

1

166

2.15

ล้านบาท

Untitled

ติดตาม

facebook
youtube
Line2
tiktok

แบบสำรวจ

  • แบบสำรวจความต้องการ

  • ร้องเรียนบริการ

  • ประเมินความพึงพอใจ

หจก.แอ็ดไมร คอนสตรัคชั่น

306/24-25 มิตรภาพซอย 4 ต.ในเมือง
อ.เมืองนครราชสีมา จ.นครราชสีมา
30000

เวลาทำการ : จันทร์ - เสาร์
เวลา 08.00 - 17.00 น.

© สงวนลิขสิทธิ์ หจก. แอ็ดไมร คอนสตรัคชั่น พ.ศ. 2567

Line