home_plan_banner

คารินา I Karina

มินิมอล

บ้านชั้นเดียว

คารินา บ้าน 1 ชั้น สไตล์มินิมอล โดดเด่นด้วยโทนสีขาวสะอาดตา ผสมผสานกับสีไม้ระแนงตกแต่งที่ช่วยเพิ่มความมีมิติให้กับตัวบ้าน หลังคาทรงจั่วสีเทาเข้มให้ความรู้สึกมั่นคงและมีเอกลักษณ์เฉพาะตัว ลงตัวทั้งดีไซน์ ฟังก์ชันการใช้งาน และให้ความรู้สึกอบอุ่นในทุกมุมมอง

รายละเอียดบ้าน

1.80

ล้านบาท

ห้องนอน

2

ห้อง

จำนวนห้องรับแขก

1

ห้อง

ขนาดที่ดิน

57.85

ตร.ว.

จำนวนห้องน้ำ

1

ห้อง

จำนวนชั้น

1

ชั้น

พื้นที่ใช้สอยตัวบ้าน

102.10

ตร.ม.

กว้าง x ลึก

12.89 x 8.70

เมตร

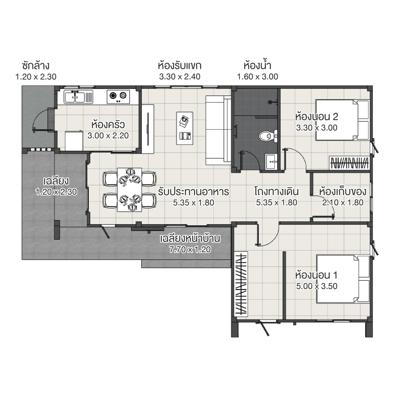
plan-floor-1

แปลนบ้าน ชั้น 1

รวมภาพออกแบบ

วีดีโอออกแบบบ้าน

ติดต่อแอ็ดไมร

ประเมิณราคาฟรีภายใน 4 ชั่วโมง

แบบบ้านที่คล้ายกัน

คอนเทมโพรารี่

แทนไท | Tantai

แทนไท บ้านชั้นเดียว บ้านสไตล์คอนเทมโพรารี่โมเดิร์น (Contemporary Modern) ที่ออกแบบอย่างประณีต ผสมผสานความเรียบง่ายเข้ากับความอบอุ่น หลังคาทรงปั้นหยา เพิ่มความมีมิติให้ตัวบ้านโดยเลือกใช้สีขาว และสีเทา มาพร้อมพื้นที่ใช้สอย 134 ตร.ม. รองรับทุกไลฟ์สไตล์ของทุกคนในครอบครัว

ขนาดที่ดิน

74 ตร.ว.

ที่ดินกว้าง

13 ม.

4

4

1

134

2.40

ล้านบาท

เจแปน

อากิโกะ | Akio

อากิโอะ บ้านชั้นเดียวสไตล์มินิมอล ออกแบบในโทนสีขาว เทา เรียบง่ายและสะอาดตา ตัดกับสีน้ำตาลช่วยเพิ่มบรรยากาศอบอุ่น ให้บ้านโดดเด่นอย่างมีเอกลักษณ์ พื้นที่ใช้สอยถูกออกแบบให้โปร่งโล่งเชื่อมต่อกับธรรมชาติผ่านระเบียงนั่งเล่นและหน้าต่างกระจกรอบตัวบ้าน เหมาะสำหรับการพักผ่อนในทุกวัน

ขนาดที่ดิน

132 ตร.ว.

ที่ดินกว้าง

30 ม.

3

2

1

195

3.80

ล้านบาท

มินิมอล

โคโมริ | Komori

“โคโมริ” ได้แรงบันดาลใจจากความเรียบง่ายของ บ้านสไตล์มินิมอลญี่ปุ่น ที่ผสมผสานความอบอุ่นของโทนไม้กับความสะอาดของสีขาว พร้อมหลังคาทรงจั่วที่ดูมั่นคงและเรียบง่าย ทำให้บ้านเหมาะกับทั้งครอบครัวรุ่นใหม่และคนที่ต้องการบ้านชั้นเดียวเพื่อการใช้ชีวิตที่สะดวกสบาย

ขนาดที่ดิน

96 ตร.ว.

ที่ดินกว้าง

23 ม.

4

4

1

190

3.10

ล้านบาท

เจแปน

ฮารุมิ | Harumi

ฮารุมิ บ้านชั้นเดียวสไตล์มินิมอล เน้นความเรียบง่าย สะอาดตา การออกแบบเน้นการใช้โทนสีขาว และสีเทาเป็นหลัก ช่วยให้บ้านดูกว้าง โปร่ง และทันสมัย เพิ่มมิติให้กับตัวบ้านให้มีเสน่ห์ในแบบมินิมอลที่ทั้งอบอุ่นและน่าอยู่ หน้าต่างกระจกบานใหญ่ช่วยดึงแสงธรรมชาติเข้ามาภายในให้ผู้อาศัยรู้สึกเหมือนได้เชื่อมโยงกับธรรมชาติ นอกจากนี้ฟังก์ชันภายในยังออกแบบมาได้อย่างลงตัวเพื่อการพักผ่อนที่สมบูรณ์ในทุก ๆ วัน

ขนาดที่ดิน

61 ตร.ว.

ที่ดินกว้าง

13 ม.

2

1

1

102

1.70

ล้านบาท

ฟาร์มเฮาส์

ไซลินี | SILENE

“ไซลินี” ได้รับแรงบันดาลใจจากความอบอุ่นของ บ้านสไตล์ฟาร์มเฮาส์ (Farmhouse Style) ที่ผสมผสานความคลาสสิกแบบชนบทตะวันตกเข้ากับการอยู่อาศัยแบบไทยในปัจจุบัน ออกแบบให้เรียบง่าย น่าอยู่ และโอบล้อมด้วยบรรยากาศที่เป็นกันเอง เหมาะสำหรับครอบครัวเล็กหรือคู่รักที่กำลังเริ่มต้นชีวิตครอบครัว

ขนาดที่ดิน

72 ตร.ว.

ที่ดินกว้าง

12 ม.

2

2

1

148

3.05

ล้านบาท

Untitled

ติดตาม

facebook
youtube
Line2
tiktok

แบบสำรวจ

  • แบบสำรวจความต้องการ

  • ร้องเรียนบริการ

  • ประเมินความพึงพอใจ

หจก.แอ็ดไมร คอนสตรัคชั่น

306/24-25 มิตรภาพซอย 4 ต.ในเมือง
อ.เมืองนครราชสีมา จ.นครราชสีมา
30000

เวลาทำการ : จันทร์ - เสาร์
เวลา 08.00 - 17.00 น.

© สงวนลิขสิทธิ์ หจก. แอ็ดไมร คอนสตรัคชั่น พ.ศ. 2567

Line