home_plan_banner

อากิโกะ I Akio

เจแปน

บ้านชั้นเดียว

อากิโอะ บ้านชั้นเดียวสไตล์มินิมอล ออกแบบในโทนสีขาว เทา เรียบง่ายและสะอาดตา ตัดกับสีน้ำตาลช่วยเพิ่มบรรยากาศอบอุ่น ให้บ้านโดดเด่นอย่างมีเอกลักษณ์ พื้นที่ใช้สอยถูกออกแบบให้โปร่งโล่งเชื่อมต่อกับธรรมชาติผ่านระเบียงนั่งเล่นและหน้าต่างกระจกรอบตัวบ้าน เหมาะสำหรับการพักผ่อนในทุกวัน

รายละเอียดบ้าน

3.80

ล้านบาท

ห้องนอน

3

ห้อง

จำนวนห้องรับแขก

1

ห้อง

จำนวนที่จอดรถ

2

คัน

ขนาดที่ดิน

132.04

ตร.ว.

จำนวนห้องน้ำ

2

ห้อง

จำนวนชั้น

1

ชั้น

พื้นที่ใช้สอยตัวบ้าน

195.00

ตร.ม.

กว้าง x ลึก

30.52 x 10.30

เมตร

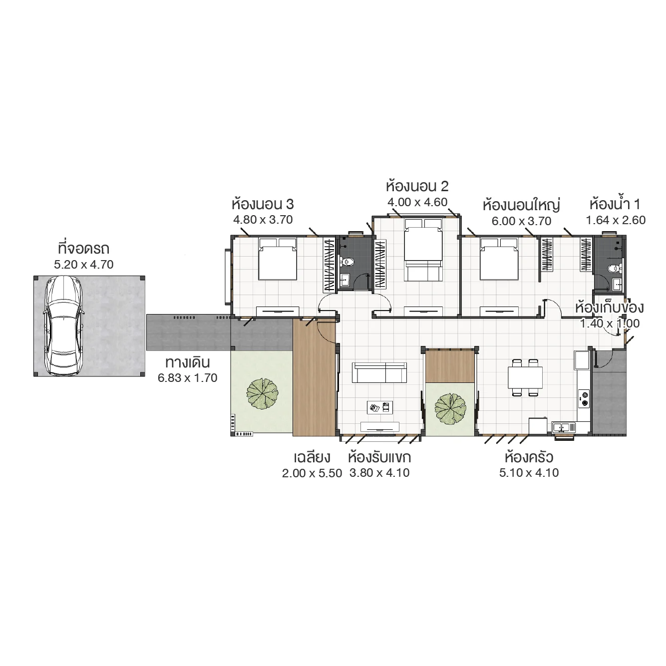
plan-floor-1

แปลนบ้าน ชั้น 1

รวมภาพออกแบบ

วีดีโอออกแบบบ้าน

ติดต่อแอ็ดไมร

ประเมิณราคาฟรีภายใน 4 ชั่วโมง

แบบบ้านที่คล้ายกัน

มินิมอล

ฮานะ | Hana

ฮานะ บ้านชั้นเดียวสไตล์มินิมอล เรียบง่ายแต่โดดเด่น ออกแบบโดยใช้โทนสีขาวตัดกับสีน้ำตาลมาพร้อมกับหลังคาทรงจั่วสีเทาอ่อน เพิ่มมิติให้บ้าน สวย อบอุ่น และมีเอกลักษณ์เฉพาะตัวฟังก์ชันการใช้งานตอบโจทย์ชีวิตประจำวัน บ้านหลังนี้จึงเหมาะสำหรับผู้ที่ต้องการ บ้านสไตล์มินิมอล ที่ลงตัวทั้งความสวยงามและการใช้งานmสะดวกสบายในทุก ๆ วัน

ขนาดที่ดิน

55 ตร.ว.

ที่ดินกว้าง

12 ม.

2

2

2

77

1.55

ล้านบาท

โมเดิร์น

ลีออน | Leon

“ลีออน” คือบ้านสไตล์ Modern Contemporary ที่ผสานความเรียบหรูเข้ากับความทันสมัย เน้นเส้นสายตรงชัดเจน หลังคาเมทัลชีทสีเข้มตัดกับผนังโทนอบอุ่น สื่อถึงความมั่นคง ทันสมัย และความภูมิฐาน เหมาะสำหรับครอบครัวที่ต้องการบ้านที่ดูดีทันตา แต่ยังคงฟังก์ชันใช้งานที่ครบถ้วน

ขนาดที่ดิน

76 ตร.ว.

ที่ดินกว้าง

13 ม.

3

2

1

130

2.35

ล้านบาท

มินิมอล

เหมันต์ | Hemun

เหมันต์ บ้านชั้นเดียวสไตล์มินิมอล โดดเด่นด้วยเส้นสายสะอาดตา หลังคาทรงจั่วสีเทาที่ให้ความรู้สึกทันสมัย ตัวบ้านใช้โทนสีขาวตัดกับสีน้ำตาลจากไม้ระแนงตกแต่ง สร้างบรรยากาศอบอุ่น สบายตา พื้นที่ด้านหน้ามีเฉลียงกว้าง ช่วยเพิ่มพื้นที่พักผ่อน เหมาะสำหรับผู้ที่กำลังมองหา แบบบ้านชั้นเดียวมินิมอล ที่ตอบโจทย์ทั้งความสวยงาม ความเรียบง่าย และความสะดวกสบายในทุกวัน

ขนาดที่ดิน

98 ตร.ว.

ที่ดินกว้าง

20 ม.

2

2

1

206

2.70

ล้านบาท

เจแปน

ไฮกุ M | Haiku M

บ้านไฮกุ M ได้แรงบันดาลใจจากความงดงามแบบญี่ปุ่น เน้นความ เรียบง่าย โปร่ง โล่ง และเชื่อมต่อธรรมชาติ ทุกดีเทลถูกออกแบบมาเพื่อให้บ้านดูสงบ เรียบ แต่หรูหราในเวลาเดียวกัน

ขนาดที่ดิน

114 ตร.ว.

ที่ดินกว้าง

23 ม.

3

2

1

235

4.00

ล้านบาท

คลาสสิค

มีเรย์ | Mireille

บ้านมีเรย์ถูกออกแบบให้เป็นบ้านสไตล์ คลาสสิก (Classic Style) ที่ดูเรียบง่าย มีเสน่ห์เหนือกาลเวลา การออกแบบเน้นความ อบอุ่น น่าอยู่ และเป็นมิตรต่อทุกคนในครอบครัว ผสมผสานความสวยงามของเส้นโค้งแบบคลาสสิกเข้ากับการจัดวางพื้นที่ที่เน้นการใช้งานจริง

ขนาดที่ดิน

69 ตร.ว.

ที่ดินกว้าง

11 ม.

3

2

1

128

2.55

ล้านบาท

Untitled

ติดตาม

facebook
youtube
Line2
tiktok

แบบสำรวจ

  • แบบสำรวจความต้องการ

  • ร้องเรียนบริการ

  • ประเมินความพึงพอใจ

หจก.แอ็ดไมร คอนสตรัคชั่น

306/24-25 มิตรภาพซอย 4 ต.ในเมือง
อ.เมืองนครราชสีมา จ.นครราชสีมา
30000

เวลาทำการ : จันทร์ - เสาร์
เวลา 08.00 - 17.00 น.

© สงวนลิขสิทธิ์ หจก. แอ็ดไมร คอนสตรัคชั่น พ.ศ. 2567

Line