home_plan_banner

อินากะ I Inaka

เจแปน

บ้านชั้นเดียว

“Inaka” (田舎) ในภาษาญี่ปุ่น หมายถึง “ชนบท” หรือ “บ้านนอก” ที่เต็มไปด้วยความเรียบง่าย สงบ และใกล้ชิดธรรมชาติ บ้านอินากะจึงถูกออกแบบมาเพื่อสะท้อนบรรยากาศแบบชนบทญี่ปุ่นดั้งเดิม แต่ปรับให้ทันสมัยและตอบโจทย์วิถีชีวิตคนรุ่นใหม่

รายละเอียดบ้าน

1.85

ล้านบาท

ห้องนอน

2

ห้อง

จำนวนห้องรับแขก

1

ห้อง

ขนาดที่ดิน

55.87

ตร.ว.

จำนวนห้องน้ำ

1

ห้อง

จำนวนชั้น

1

ชั้น

พื้นที่ใช้สอยตัวบ้าน

110.00

ตร.ม.

กว้าง x ลึก

8.50 x 13.90

เมตร

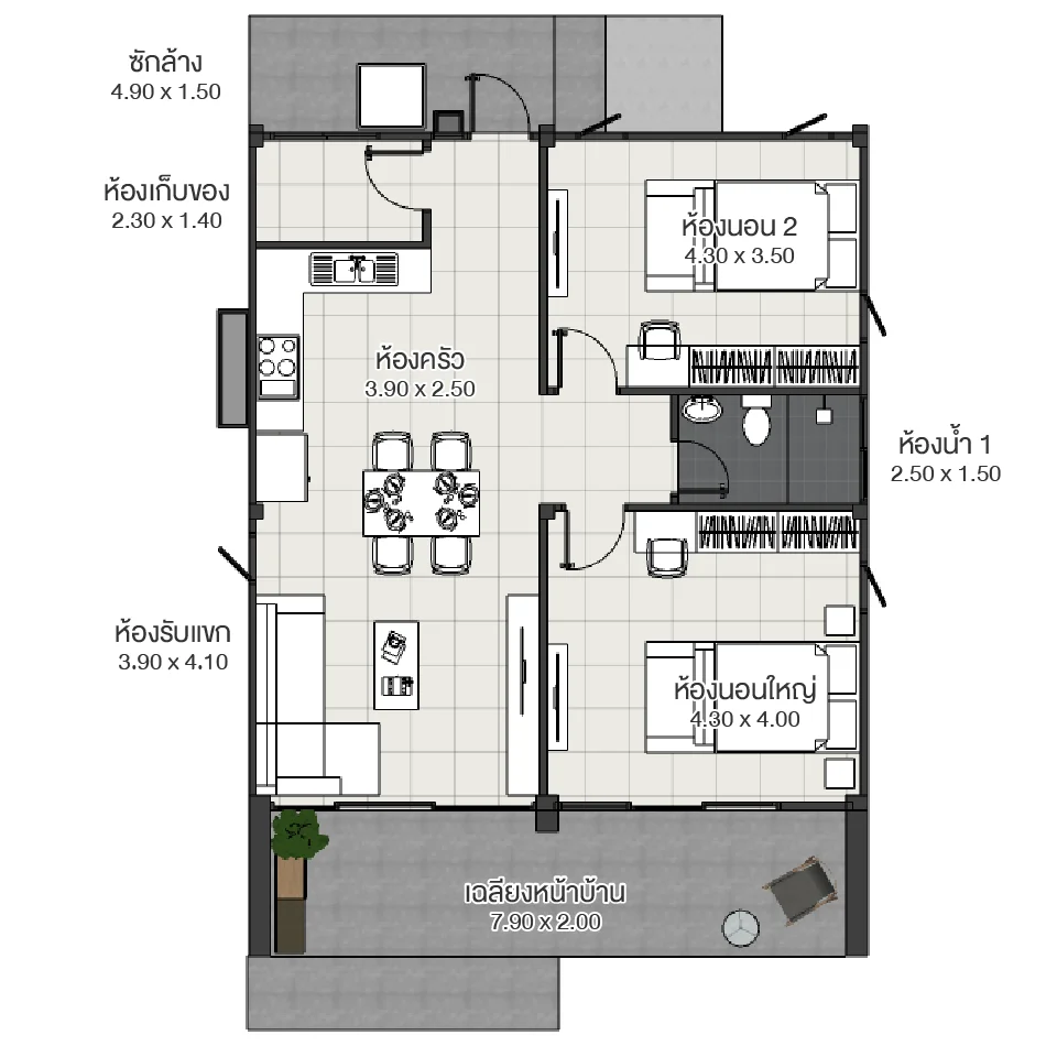
plan-floor-1

แปลนบ้าน ชั้น 1

รวมภาพออกแบบ

วีดีโอออกแบบบ้าน

ติดต่อแอ็ดไมร

ประเมิณราคาฟรีภายใน 4 ชั่วโมง

แบบบ้านที่คล้ายกัน

คอนเทมโพรารี่

วนิดา | Vanida

วนิดา บ้านชั้นเดียวสไตล์คลาสสิก โดดเด่นด้วยหลังคาสีเทาทรงปั้นหยาให้ความรู้สึกมั่นคง แข็งแรง ผนังภายนอกใช้โทนสีฟ้าอ่อนผสมผสานกับสีขาว สะท้อนความสง่างามที่เรียบง่าย แต่ยังคงความทันสมัยอย่างลงตัว ช่องหน้าต่างบานกว้างช่วยดึงแสงธรรมชาติเข้าสู่ภายใน ทำให้บ้านดูกว้าง โปร่ง สบาย ตอบโจทย์ทั้งความสวยงาม ฟังก์ชันการใช้งานเหมาะสำหรับทุกครอบครัว

ขนาดที่ดิน

63 ตร.ว.

ที่ดินกว้าง

14 ม.

4

2

1

115

2.09

ล้านบาท

โมเดิร์น

ลีออน | Leon

“ลีออน” คือบ้านสไตล์ Modern Contemporary ที่ผสานความเรียบหรูเข้ากับความทันสมัย เน้นเส้นสายตรงชัดเจน หลังคาเมทัลชีทสีเข้มตัดกับผนังโทนอบอุ่น สื่อถึงความมั่นคง ทันสมัย และความภูมิฐาน เหมาะสำหรับครอบครัวที่ต้องการบ้านที่ดูดีทันตา แต่ยังคงฟังก์ชันใช้งานที่ครบถ้วน

ขนาดที่ดิน

76 ตร.ว.

ที่ดินกว้าง

13 ม.

3

2

1

130

2.35

ล้านบาท

เจแปน

อาซามิ | Asami

อาซามิ บ้านสไตล์มินิมอล เรียบง่าย แต่แฝงด้วยเสน่ห์เฉพาะตัว ตัวบ้านถูกออกแบบด้วยโทนสีขาวสะอาดตา ช่วยให้บ้านดูโปร่ง โล่ง สบาย ตัดกับสีน้ำตาลอ่อนจากไม้ระแนงตกแต่ง พร้อมหลังคาทรงจั่วสีเทา เพิ่มความรู้สึกอบอุ่นและมีมิติให้กับตัวบ้าน เหมาะสำหรับครอบครัวที่ชอบบรรยากาศผ่อนคลาย และต้องการพื้นที่ใช้สอยที่ลงตัว บ้านมินิมอลหลังนี้จึงตอบโจทย์ไลฟ์สไตล์การใช้ชีวิตที่เน้นความสงบและความสมดุลในทุกวัน

ขนาดที่ดิน

75 ตร.ว.

ที่ดินกว้าง

17 ม.

3

2

1

139

2.50

ล้านบาท

คอนเทมโพรารี่

แทนไท | Tantai

แทนไท บ้านชั้นเดียว บ้านสไตล์คอนเทมโพรารี่โมเดิร์น (Contemporary Modern) ที่ออกแบบอย่างประณีต ผสมผสานความเรียบง่ายเข้ากับความอบอุ่น หลังคาทรงปั้นหยา เพิ่มความมีมิติให้ตัวบ้านโดยเลือกใช้สีขาว และสีเทา มาพร้อมพื้นที่ใช้สอย 134 ตร.ม. รองรับทุกไลฟ์สไตล์ของทุกคนในครอบครัว

ขนาดที่ดิน

74 ตร.ว.

ที่ดินกว้าง

13 ม.

4

4

1

134

2.40

ล้านบาท

เจแปน

อากิโกะ | Akio

อากิโอะ บ้านชั้นเดียวสไตล์มินิมอล ออกแบบในโทนสีขาว เทา เรียบง่ายและสะอาดตา ตัดกับสีน้ำตาลช่วยเพิ่มบรรยากาศอบอุ่น ให้บ้านโดดเด่นอย่างมีเอกลักษณ์ พื้นที่ใช้สอยถูกออกแบบให้โปร่งโล่งเชื่อมต่อกับธรรมชาติผ่านระเบียงนั่งเล่นและหน้าต่างกระจกรอบตัวบ้าน เหมาะสำหรับการพักผ่อนในทุกวัน

ขนาดที่ดิน

132 ตร.ว.

ที่ดินกว้าง

30 ม.

3

2

1

195

3.80

ล้านบาท

Untitled

ติดตาม

facebook
youtube
Line2
tiktok

แบบสำรวจ

  • แบบสำรวจความต้องการ

  • ร้องเรียนบริการ

  • ประเมินความพึงพอใจ

หจก.แอ็ดไมร คอนสตรัคชั่น

306/24-25 มิตรภาพซอย 4 ต.ในเมือง
อ.เมืองนครราชสีมา จ.นครราชสีมา
30000

เวลาทำการ : จันทร์ - เสาร์
เวลา 08.00 - 17.00 น.

© สงวนลิขสิทธิ์ หจก. แอ็ดไมร คอนสตรัคชั่น พ.ศ. 2567

Line