home_plan_banner

มิรา I Mira

โมเดิร์น

บ้านชั้นครึ่ง

บ้านชั้นครึ่ง สไตล์คอนเทมโพรารี่โมเดิร์น ผสานความเรียบง่ายและฟังก์ชันการใช้งานอย่างลงตัว การเลือกใช้โทนสีเทา ขาว และน้ำตาล ให้ความรู้สึกอบอุ่น น่าอยู่ และทันสมัย ผนังตกแต่งด้วยหินทรายจิ๊กซอว์สีดำ และไม้ระแนงตกแต่งช่วยเสริมมิติตัวบ้านให้ดูโดดเด่น “มิรา” เหมาะสำหรับผู้ที่มองหา แบบบ้านทันสมัย น่าอยู่ ลงตัวทั้งดีไซน์และประโยชน์ใช้สอยในทุกตารางนิ้ว

รายละเอียดบ้าน

2.95

ล้านบาท

ห้องนอน

2

ห้อง

จำนวนห้องรับแขก

1

ห้อง

จำนวนที่จอดรถ

2

คัน

ขนาดที่ดิน

52.50

ตร.ว.

จำนวนห้องน้ำ

2

ห้อง

จำนวนชั้น

2

ชั้น

พื้นที่ใช้สอยตัวบ้าน

131.80

ตร.ม.

กว้าง x ลึก

11.00 x 9.00

เมตร

plan-floor-1

แปลนบ้าน ชั้น 1

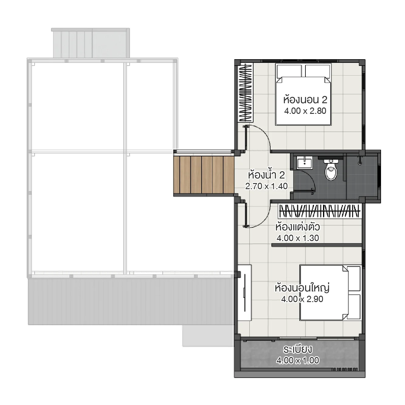
plan-floor-2

แปลนบ้าน ชั้น 2

รวมภาพออกแบบ

วีดีโอออกแบบบ้าน

ติดต่อแอ็ดไมร

ประเมิณราคาฟรีภายใน 4 ชั่วโมง

แบบบ้านที่คล้ายกัน

โมเดิร์น

จัสมิน S | Jasmine S

บ้านชั้นครึ่งสไตล์โมเดิร์น โดดเด่นด้วยการออกแบบที่เป็นเอกลักษณ์ การเล่นระดับสร้างมิติให้มีความน่าสนใจ เน้นโทนสีขาว เทา น้ำตาล ให้ความรู้สึกอบอุ่น ทันสมัย และกลมกลืนกับธรรมชาติ เน้นความโปร่งโล่งด้วยหน้าต่างและประตูบานใหญ่ พร้อมพื้นที่ใช้สอยที่จัดสรรได้อย่างลงตัว รองรับที่จอดรถ 2 คัน มอบความสะดวกสบายในทุกตารางนิ้ว สัมผัสความสุขจากการอยู่อาศัยในบ้านที่สร้างจากวัสดุคุณภาพและความใส่ใจ

ขนาดที่ดิน

55 ตร.ว.

ที่ดินกว้าง

10 ม.

3

2

1

155

2.90

ล้านบาท

ไทยประยุกต์

ขุนศึก M | Khunsuk M

“ขุนศึก” บ้านชั้นครึ่งสไตล์ไทยประยุกต์ แสดงเสน่ห์ความเป็นไทยร่วมสมัย ผ่านหลังคาทรงมะนิลาสะท้อนกลิ่นอายบ้านไทยดั้งเดิมแต่ยังคงความทันสมัยผ่านการเลือกใช้โทนสีเทาเข้ม สลับด้วยสีน้ำตาลและสีขาว เสริมด้วยเส้นสายเรียบคม ให้ความรู้สึกสงบ และสง่างาม มาพร้อมกับฟังก์ชันที่ตอบโจทย์การใช้ชีวิตยุคใหม่

ขนาดที่ดิน

60 ตร.ว.

ที่ดินกว้าง

11 ม.

3

2

1

152

2.80

ล้านบาท

ไทยประยุกต์

ขุนไกร | Kunkrai

บ้านขุนไกร บ้านสไตล์ไทยประยุกต์ แบบบ้านยกพื้นสูง ผสมผสานความงามแบบไทยดั้งเดิมกับเส้นสายที่เรียบง่ายแต่ทันสมัย มาพร้อมพื้นที่ใช้สอย 3 ห้องนอน 2 ห้องน้ำ และห้องรับแขกโปร่งโล่ง เชื่อมต่อพื้นที่พักผ่อนบนระเบียงรับลมธรรมชาติพร้อมใต้ถุนโล่งอเนกประสงค์ใช้จอดรถหรือทำกิจกรรมครอบครัว

ขนาดที่ดิน

55 ตร.ว.

ที่ดินกว้าง

8 ม.

3

2

1

125

2.65

ล้านบาท

โมเดิร์น

จัสมิน M | Jasmine M

บ้านชั้นครึ่งสไตล์โมเดิร์น โดดเด่นด้วยการออกแบบที่เป็นเอกลักษณ์ การเล่นระดับสร้างมิติให้มีความน่าสนใจ เน้นโทนสีขาว เทา น้ำตาล ให้ความรู้สึกอบอุ่น ทันสมัย และกลมกลืนกับธรรมชาติ เน้นความโปร่งโล่งด้วยหน้าต่างและประตูบานใหญ่ พร้อมพื้นที่ใช้สอยที่จัดสรรได้อย่างลงตัว รองรับที่จอดรถ 2 คัน มอบความสะดวกสบายในทุกตารางนิ้ว สัมผัสความสุขจากการอยู่อาศัยในบ้านที่สร้างจากวัสดุคุณภาพและความใส่ใจ

ขนาดที่ดิน

62 ตร.ว.

ที่ดินกว้าง

11 ม.

3

2

1

189

3.50

ล้านบาท

ไทยประยุกต์

ขุนศึก L | Khunsuk L

“ขุนศึก L” บ้านชั้นครึ่งสไตล์ไทยประยุกต์ แสดงเสน่ห์ความเป็นไทยร่วมสมัย ผ่านหลังคาทรงมะนิลาสะท้อนกลิ่นอายบ้านไทยดั้งเดิมแต่ยังคงความทันสมัยผ่านการเลือกใช้โทนสีเทาเข้ม สลับด้วยสีน้ำตาลและสีขาว เสริมด้วยเส้นสายเรียบคม ให้ความรู้สึกสงบ และสง่างาม มาพร้อมกับฟังก์ชันที่ตอบโจทย์การใช้ชีวิตยุคใหม่

ขนาดที่ดิน

60 ตร.ว.

ที่ดินกว้าง

11 ม.

3

2

1

164

3.45

ล้านบาท

Untitled

ติดตาม

facebook
youtube
Line2
tiktok

แบบสำรวจ

  • แบบสำรวจความต้องการ

  • ร้องเรียนบริการ

  • ประเมินความพึงพอใจ

หจก.แอ็ดไมร คอนสตรัคชั่น

306/24-25 มิตรภาพซอย 4 ต.ในเมือง
อ.เมืองนครราชสีมา จ.นครราชสีมา
30000

เวลาทำการ : จันทร์ - เสาร์
เวลา 08.00 - 17.00 น.

© สงวนลิขสิทธิ์ หจก. แอ็ดไมร คอนสตรัคชั่น พ.ศ. 2567

Line